ようこそ!ゲストさん
お気に入り
保存した検索条件
閲覧履歴
会員登録
ログイン
0120-150-580
営業時間:午前9:00~午後9:00
沿線・駅
新横浜
詳細条件
一戸建て
こだわり
-
該当件数
24件
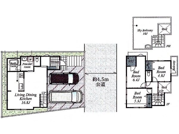
横浜市港北区岸根町 中古一戸建 3780万円
間取り
値下げしました
中古一戸建て
3,780万円
4LDK
2026.03.05更新
横浜市緑区東本郷6丁目 中古一戸建 4299万円
4,299万円
3SLDK
申し訳ありません こちらは会員限定物件です
会員登録で利用できる6つの便利機能
横浜市緑区東本郷4丁目 中古一戸建 4499万円
4,499万円
横浜市港北区篠原町 一戸建 5108.3万円 B号棟
5,108万円
1LDK+2S
横浜市緑区東本郷5丁目 新築一戸建 5780万円
新築一戸建て
5,780万円
3LDK
横浜市港北区鳥山町 新築一戸建 5780万円
2026.02.27更新
横浜市鶴見区獅子ヶ谷2丁目 新築一戸建 5980万円
建物完成しましたのでご見学頂けます!
5,980万円
2026.03.06更新
横浜市神奈川区三枚町 新築一戸建 6280万円
6,280万円
横浜市港北区大倉山6丁目 新築一戸建 6480万円 B号棟
6,480万円
横浜市港北区鳥山町 新築一戸建 6488万2500円 C棟
6,488万円
5LDK