ようこそ!ゲストさん
お気に入り
保存した検索条件
閲覧履歴
会員登録
ログイン
0120-150-580
営業時間:午前9:00~午後9:00
早く売りたい事情あり!早いもの勝ちですよ!
詳細条件
値引き物件
こだわり
-
該当件数
644件
川崎市宮前区有馬9丁目 中古一戸建 6499万円
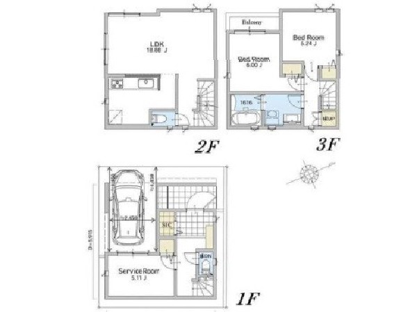
間取り
値下げしました
中古一戸建て
6,499万円
3LDK
2026.01.29更新
横浜市都筑区東山田町 中古一戸建 6499万円
4LDK
値下げしました! 「菊名」「大倉山」駅利用 新築一戸建て(1) 対面キッチン
新築一戸建て
6,498万円
値下げしました!今週末見学会開催中!「上永谷」駅徒歩9分 新築一戸建て(2)カースペース2台
6,490万円
横浜市西区浅間町3丁目 新築一戸建 6480万円 1号棟
6,480万円
2SLDK
2026.01.30更新
狛江市中和泉5丁目 建築条件無売地 6480万円
土地・売り地
2026.01.23更新
横浜市青葉区榎が丘 新築一戸建 6480万円 1号棟
建物完成しましたのでご見学頂けます!
稲城市大丸 新築一戸建 6480万円 2号棟
5LDK
川崎市麻生区千代ケ丘6丁目 新築一戸建 6480万円 1号棟
申し訳ありません こちらは会員限定物件です
会員登録で利用できる6つの便利機能
横浜市青葉区荏田西5丁目 新築一戸建 6390万円 2号棟
6,390万円
横浜市青葉区荏田西5丁目 新築一戸建 6390万円 3号棟
川崎市高津区下作延6丁目 建築条件無売地 6380万円 1区画
6,380万円
川崎市中原区下小田中6丁目 新築一戸建 6380万円
2LDK+2S
横浜市港北区菊名3丁目 新築一戸建 6380万円 4号棟