ようこそ!ゲストさん
お気に入り
保存した検索条件
閲覧履歴
会員登録
ログイン
0120-150-580
営業時間:午前9:00~午後9:00
エリア
川崎市多摩区
詳細条件
-
こだわり
該当件数
51件
多摩区東生田4丁目 建築条件付売地 2500万円 2区画
土地・売り地
2,500万円
2026.04.09更新
多摩区東生田4丁目 建築条件付売地 2500万円 5区画
多摩区東生田4丁目 建築条件付売地 2600万円 6区画
2,600万円
川崎市多摩区南生田2丁目 中古一戸建 3197万円
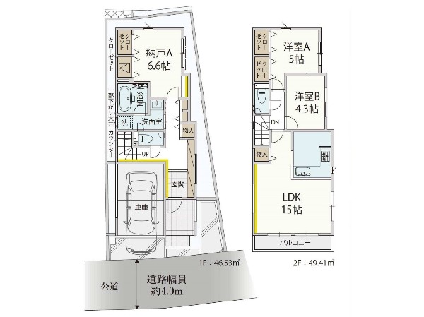
間取り
中古一戸建て
3,197万円
3LDK
川崎市多摩区中野島5丁目 中古一戸建 3480万円
3,480万円
2SLDK
2026.04.07更新
川崎市多摩区長尾7丁目 中古一戸建 3499万円
3,499万円
4LDK
2026.03.27更新
川崎市多摩区西生田3丁目 建築条件付売地 3580万円 1区画
値下げしました
3,580万円
川崎市多摩区西生田3丁目 建築条件付売地 3680万円 2区画
3,680万円
川崎市多摩区菅馬場1丁目 中古一戸建 3699万円
3,699万円
2026.04.03更新
川崎市多摩区宿河原4丁目 建築条件無売地 3910万円 1区画
3,910万円
川崎市多摩区長尾7丁目 中古一戸建 3999万円
3,999万円
川崎市多摩区菅馬場3丁目 建築条件無売地 4280万円
4,280万円
川崎市多摩区南生田5丁目 新築一戸建 4580万円 3号棟
建物完成しましたのでご見学頂けます!
新築一戸建て
4,580万円
2026.03.26更新
川崎市多摩区栗谷2丁目 中古一戸建 4599万円
4,599万円
川崎市多摩区南生田5丁目 新築一戸建 4680万円 1号棟
4,680万円