1. トップページ
  2. 小平市中島町 新築一戸建て 5399万円 1号棟

小平市中島町 新築一戸建て 5399万円 1号棟

価格
5,399万円
物件種別
新築一戸建て
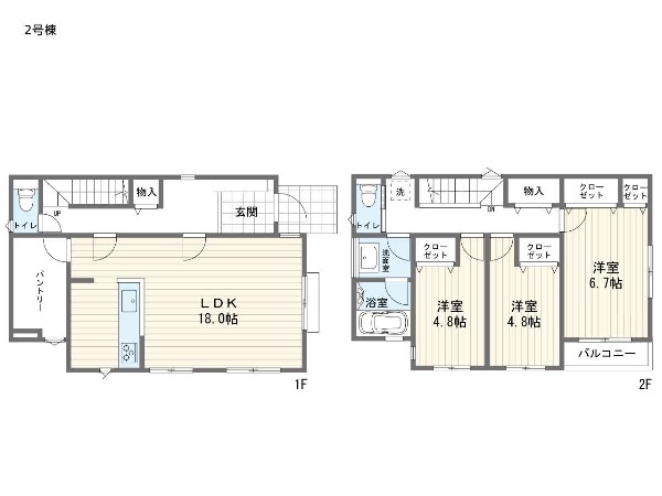
間取り
3LDK
所在地
小平市 中島町
交通
  • 西武拝島線「玉川上水」駅 徒歩 9 分
  • 西武拝島線「東大和市」駅 徒歩 13 分
土地面積
106.41㎡
建物面積
84.46㎡
  • 前回情報更新日 2026.04.06
  • 次回情報更新予定日 2026.04.20
資料請求 現地見学 電話でお問い合わせ
0120-150-580
外観:現地外観写真
外観:現地外観写真
間取図
間取図
外観:現地外観写真
外観:現地外観写真
外観:前面道路含む現地外観写真
外観:前面道路含む現地外観写真
周辺環境:小平市立上宿小学校
周辺環境:小平市立上宿小学校
周辺環境:小平市立小平第五中学校
周辺環境:小平市立小平第五中学校
周辺環境:上宿保育園
周辺環境:上宿保育園
周辺環境:南台病院
周辺環境:南台病院
周辺環境:玉川上水駅
周辺環境:玉川上水駅

この物件のココがオススメ!

西武拝島線「玉川上水」駅より9分の立地です。主寝室は多様に使える2ドア仕様の間取。食洗機など設備完備

お気軽にどうぞ!

資料請求 現地見学 電話でお問い合わせ
0120-150-580

地図

申し訳ありません
こちらは会員限定機能です

会員登録で利用できる6つの便利機能

詳しく見る

お気軽にどうぞ!

資料請求 現地見学 電話でお問い合わせ
0120-150-580

頭金0万円・金利0.495%の場合

ボーナス時(年2回)お支払額

0

この物件の月々のお支払額

151,209

年収に対する返済比率

60

  • ※会員登録し、詳細情報を記入されますと、全ての物件で自動的に金額が表示され、大変便利です。
  • ※まだ会員登録をされていない方は、下記チェック欄をご記入ください。
  • ※上記計算は物件価格5,399万円+諸経費 8%込みの金額による結果となります。
  • ※返済金額はあくまでも目安です。

お客様の条件からシミュレーションするには?

会員登録
マイページから登録

金利

直接入力する

ボーナス払い(年2回)

返済年数

頭金

直接入力する

 万円(半角数字)

年収

 万円(半角数字)

約1,600m

小学校

周辺環境:小平市立上宿小学校

小学校

約1,600m

約3,000m

中学校

周辺環境:小平市立小平第五中学校

中学校

約3,000m

約1,800m

幼稚園・保育園

周辺環境:上宿保育園

幼稚園・保育園

約1,800m

約1,660m

病院

周辺環境:南台病院

病院

約1,660m

約720m

周辺環境:玉川上水駅

約720m

価格 5,399万円
物件種別 新築一戸建て
間取り 3LDK
所在地 小平市 中島町
交通
  • 西武拝島線「玉川上水」駅 徒歩 9 分
  • 西武拝島線「東大和市」駅 徒歩 13 分
土地面積 106.41㎡
建物面積 84.46㎡
学区 小平市立上宿小学校、小平市立小平第五中学校
用途地域 第一種低層住居専用
建ぺい率 40%
容積率 80%
地目 宅地
駐車場 有り カースペース
接道 北4m、東4m
権利 所有権
私道面積 有 68.00㎡ 2/16
セットバック 無し
建物構造 木造
建物階数 2階
築年月 2026年04月
入居日 2026年05月
都市計画 市街化区域
取引態様 仲介
物件番号 T291291
設備 公営水道、公共下水、集中LPG、閑静な住宅地、角地、地盤調査済、2沿線以上利用可、システムキッチン、カウンタキッチン、食器洗い機付き、浄水器、追い焚き、浴室乾燥機、ウォシュレット、トイレ2ヶ所、浴室1坪以上、浴室に窓、バルコニー、2階建、LDK15畳以上、採光3面、全室2面採光、リビング階段、床下収納、全居室収納、フラット35Sに対応、モニタ付きインターフォン、複層ガラス、通風良好、陽当り良好
建築確認番号 第25UDI1W建08314号
特記事項 隅切り:有/景観法:有/航空法:有/高度地区:有/日影制限:有/高さ限度:有/法22条区域/建築基準法43条:e…建築基準法43条第2項第2号許可済。 /
備考 西武拝島線「玉川上水」駅より9分の立地です。主寝室は多様に使える2ドア仕様の間取。食洗機など設備完備

こだわりポイント

  • プロパンガス
  • 食器洗い洗浄乾燥機
  • 浴室換気乾燥暖房機
  • 急行電車でスピード通勤
  • 始発で座ってゆったり通勤
  • 駅まで平坦ラクラク通勤
  • 2沿線利用であんしん通勤
  • 自然を感じる暮らし
  • LDKは1階に
  • 2階建て住宅限定
  • ウォークインクローゼット
  • リビングイン階段
  • LDK15帖以上
  • 主寝室 8帖以上
  • 対面キッチン
  • 浴室1坪以上
  • パントリー
  • コンビニ10分以内
  • 保育園10分以内
  • 公園10分以内
  • フラット35利用可
  • カースペース2台
  • 隣家との間隔たっぷり
  • 角地限定
  • 道路と段差無し
  • 低層住居専用地域

お気軽にどうぞ!

資料請求 現地見学 電話でお問い合わせ
0120-150-580

このエリアでお探しの方へ

横浜市港北区篠原町 一戸建 5108.3万円 B号棟

東急新横浜線「新横浜」駅 徒歩 13 分

東急東横線「菊名」駅 徒歩 15 分

横浜市港北区 篠原町

5,108万円

1LDK+2S

値下げしました! 「蒔田」駅徒歩8分 新築一戸建て(3) エコジョーズ

ブルーライン「蒔田」駅 徒歩 8 分

ブルーライン「弘明寺」駅 徒歩 14 分

横浜市南区 大岡1丁目

5,180万円

2LDK+2S

川崎市中原区井田3丁目 新築一戸建 5180万円 3号棟

東急東横線「日吉」駅 徒歩 22 分

グリーンライン「日吉本町」駅 徒歩 23 分

川崎市中原区 井田3丁目

5,180万円

3SLDK

今週末モデルハウス見学会開催中!「桜ケ丘」「瀬谷」駅利用 新築一戸建て(1) カースペース2台

江ノ島線「桜ヶ丘」駅 徒歩 18 分

相模鉄道線「瀬谷」駅 徒歩 26 分

横浜市瀬谷区 北新

5,180万円

4LDK

建物完成しました! 今週末内覧会開催中!「瀬谷」駅徒歩14分 新築一戸建て(4) 床暖房完備

相模鉄道線「瀬谷」駅 徒歩 14 分

相模鉄道線「三ッ境」駅 徒歩 17 分

横浜市瀬谷区 瀬谷1丁目

5,180万円

4LDK

今週末モデルハウス見学会開催中!「戸塚」駅利用 新築一戸建て(1)パントリー完備

東海道本線「戸塚」駅 徒歩 18 分

ブルーライン「戸塚」駅 徒歩 18 分

横浜市戸塚区 戸塚町

5,180万円

1LDK+2S

建物完成しました! 今週末内覧会開催中!「瀬谷」駅利用 新築一戸建て(A) 閑静な住宅地

相模鉄道線「瀬谷」駅 徒歩 25 分

江ノ島線「桜ヶ丘」駅 徒歩 21 分

横浜市瀬谷区 北新

5,180万円

4LDK

値下げしました!今週末内覧会開催中!「港南台」駅徒歩13分 未入居中古一戸建て(4) 閑静な住宅地

根岸線「港南台」駅 徒歩 13 分

京浜急行本線「上大岡」駅 バス停「日野」まで 徒歩 13 分 バス利用 10分

横浜市港南区 港南台1丁目

5,180万円

3SLDK

今週末内覧会開催中!「山手」駅利用 中古一戸建て 全室2面採光

根岸線「山手」駅 バス停「本牧」まで 徒歩 10 分 バス利用 18分

みなとみらい線「元町・中華街」駅 バス停「本牧大里町」まで 徒歩 3 分 バス利用 20分

横浜市中区 本牧元町

5,180万円

4LDK

横浜市神奈川区菅田町 新築一戸建 5180万円 2号棟

横浜線「鴨居」駅 バス停「小川橋」まで 徒歩 5 分 バス利用 10分

ブルーライン「片倉町」駅 バス停「小川橋」まで 徒歩 4 分 バス利用 13分

横浜市神奈川区 菅田町

5,180万円

4LDK

今週末モデルハウス見学会開催中!「希望ケ丘」駅利用 新築一戸建て(3) カースペース2台

相模鉄道線「希望ヶ丘」駅 徒歩 17 分

いずみ野線「二俣川」駅 バス停「善部第3」まで 徒歩 4 分 バス利用 14分

横浜市旭区 善部町

5,180万円

4LDK

今週末モデルハウス見学会開催中!「希望ケ丘」駅利用 新築一戸建て(1) カースペース2台

相模鉄道線「希望ヶ丘」駅 徒歩 17 分

いずみ野線「二俣川」駅 バス停「善部第3」まで 徒歩 4 分 バス利用 14分

横浜市旭区 善部町

5,180万円

4LDK

お気軽にどうぞ!

資料請求 現地見学 電話でお問い合わせ
0120-150-580
来店予約