1. トップページ
  2. 横浜市緑区十日市場町 新築一戸建 7189万円 C棟

横浜市緑区十日市場町 新築一戸建 7189万円 C棟

価格
7,189万円
物件種別
新築一戸建て
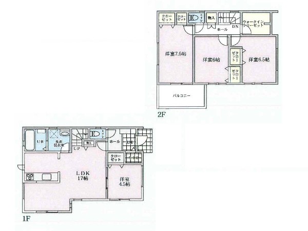
間取り
4LDK
所在地
横浜市緑区 十日市場町
交通
  • 横浜線「十日市場」駅 徒歩 7 分
  • 田園都市線「青葉台」駅 バス停「十日市場駅」まで 徒歩 7 分 バス利用 12分
土地面積
103.22㎡
建物面積
104.44㎡
  • 前回情報更新日 2025.11.07
  • 次回情報更新予定日 2025.11.21
資料請求 現地見学 電話でお問い合わせ
0120-150-580
外観:「十日市場」駅徒歩7分!公園、スーパー、保育施設、小学校、中学校まで徒歩5分以内で行ける便利な立地です。
外観:「十日市場」駅徒歩7分!公園、スーパー、保育施設、小学校、中学校まで徒歩5分以内で行ける便利な立地です。
間取り
間取り
区画図
区画図
南に大きく面した掃出し窓から光が降りそそぐ開放的なリビング。自然の恵みが、快適で心地の良い空間を演出
南に大きく面した掃出し窓から光が降りそそぐ開放的なリビング。自然の恵みが、快適で心地の良い空間を演出
足元から体を温めてくれる床暖房付き。ホコリが舞いにくく、静かです。家族が自然と集まるリビングに。
足元から体を温めてくれる床暖房付き。ホコリが舞いにくく、静かです。家族が自然と集まるリビングに。
オープンでのびやかな空間を生み出す、広がりとゆとり。家族と過ごす時間を大切にしたい方にぴったりです。
オープンでのびやかな空間を生み出す、広がりとゆとり。家族と過ごす時間を大切にしたい方にぴったりです。
外観:歩道付きの東・北角地なので明るく開放的な立地。太陽光パネル搭載のハイグレードな省エネルギー住宅です。
外観:歩道付きの東・北角地なので明るく開放的な立地。太陽光パネル搭載のハイグレードな省エネルギー住宅です。
動線がスムーズなL型キッチンは、対面式になっておりリビングの様子を見ながら家事をすることができます。
動線がスムーズなL型キッチンは、対面式になっておりリビングの様子を見ながら家事をすることができます。
カップボード備え付け、さらにパントリー付のキッチン。ストック食材やキッチン家電が収納できます。
カップボード備え付け、さらにパントリー付のキッチン。ストック食材やキッチン家電が収納できます。
キッチンの色に合わせたカップボードは収納力たっぷり。おしゃれなデザインで料理もはかどりそうですね。
キッチンの色に合わせたカップボードは収納力たっぷり。おしゃれなデザインで料理もはかどりそうですね。
自然とご家族の交流が生まれるリビングイン階段。横に扉付きの収納スペースとオープン棚が設置され収納力○
自然とご家族の交流が生まれるリビングイン階段。横に扉付きの収納スペースとオープン棚が設置され収納力○
2面採光でお部屋の隅々まで明るい居室。バルコニーにも出られて、爽やかな風をたっぷりと取り込めます。
2面採光でお部屋の隅々まで明るい居室。バルコニーにも出られて、爽やかな風をたっぷりと取り込めます。
収納力が豊富な大型クローゼット。普段着やスーツはもちろんのこと、コート類などもしっかり掛けられます。
収納力が豊富な大型クローゼット。普段着やスーツはもちろんのこと、コート類などもしっかり掛けられます。
光を取り込みやすい2面採光の居室は日当たり良好です。クローゼットの完備で収納スペースも十分。
光を取り込みやすい2面採光の居室は日当たり良好です。クローゼットの完備で収納スペースも十分。
バルコニーは2ヶ所あり。爽やかな風をたっぷりと取り込め、お洗濯物もあっという間に乾きそうですね。
バルコニーは2ヶ所あり。爽やかな風をたっぷりと取り込め、お洗濯物もあっという間に乾きそうですね。
ゆったり入れる1坪タイプの浴室。花粉が気になる季節や雨天時のお洗濯に便利な浴室換気乾燥暖房機付です。
ゆったり入れる1坪タイプの浴室。花粉が気になる季節や雨天時のお洗濯に便利な浴室換気乾燥暖房機付です。
鏡の裏に収納棚を確保した三面鏡を採用。化粧品や歯ブラシなどを機能的に収納し、朝の身支度も快適です。
鏡の裏に収納棚を確保した三面鏡を採用。化粧品や歯ブラシなどを機能的に収納し、朝の身支度も快適です。
トイレは1階と2階に2カ所あります。朝の忙しい時間も慌てることなく使用できるので助かりますね。
トイレは1階と2階に2カ所あります。朝の忙しい時間も慌てることなく使用できるので助かりますね。
下駄箱の他に土間収納が付いています。アウトドアグッズや子供のスポーツ用品を入れられ、便利ですね。
下駄箱の他に土間収納が付いています。アウトドアグッズや子供のスポーツ用品を入れられ、便利ですね。
周辺環境:そうてつローゼン十日市場店(清潔な店内と品質にこだわった品揃えで地元の人に愛されるスーパー。2階に100円ショップがあり便利。)
周辺環境:そうてつローゼン十日市場店(清潔な店内と品質にこだわった品揃えで地元の人に愛されるスーパー。2階に100円ショップがあり便利。)
周辺環境:セブンイレブン横浜十日市場店(時間を問わず、幅広い品物が揃うコンビニエンスストア。本物件より徒歩2分と気楽に立ち寄れる近さです。)
周辺環境:セブンイレブン横浜十日市場店(時間を問わず、幅広い品物が揃うコンビニエンスストア。本物件より徒歩2分と気楽に立ち寄れる近さです。)
周辺環境:ダイエー十日市場店(食品の他に日用品やヘルスケアも取扱う大型スーパー。ベーカリー、クリーニング、100円ショップあり。)
周辺環境:ダイエー十日市場店(食品の他に日用品やヘルスケアも取扱う大型スーパー。ベーカリー、クリーニング、100円ショップあり。)
周辺環境:横浜十日市場郵便局(レターパック、ゆうメールなどお得な配送サービスがある郵便局。ATMもあり近くにあると便利ですね。)
周辺環境:横浜十日市場郵便局(レターパック、ゆうメールなどお得な配送サービスがある郵便局。ATMもあり近くにあると便利ですね。)
周辺環境:みどりさくら保育園(子どもの持つ生きる力が発揮できるよう援助していく保育園。栽培や料理を通して食への興味を育てます。)
周辺環境:みどりさくら保育園(子どもの持つ生きる力が発揮できるよう援助していく保育園。栽培や料理を通して食への興味を育てます。)
周辺環境:あさひが丘幼稚園(恵まれた環境に位置する幼稚園。自然に触れ、丈夫な体に豊かな感性をもった子どもの育成に努めています。)
周辺環境:あさひが丘幼稚園(恵まれた環境に位置する幼稚園。自然に触れ、丈夫な体に豊かな感性をもった子どもの育成に努めています。)
周辺環境:十日市場小学校(校舎が新しく綺麗な小学校。各教室に壁の仕切りがない珍しい設計で、明るく開放的な空間の中で勉強します。)
周辺環境:十日市場小学校(校舎が新しく綺麗な小学校。各教室に壁の仕切りがない珍しい設計で、明るく開放的な空間の中で勉強します。)
周辺環境:十日市場中学校(令和6年に創立60周年を迎えた広い体育館のある中学校。教育目標は「自ら学び、つながり、共に生きる」)
周辺環境:十日市場中学校(令和6年に創立60周年を迎えた広い体育館のある中学校。教育目標は「自ら学び、つながり、共に生きる」)
周辺環境:十日市場駅(駅の周りにはスーパーやコンビニが立ち並び、買い物に便利です。横浜駅にも乗り換えなしの一本で行けます。)
周辺環境:十日市場駅(駅の周りにはスーパーやコンビニが立ち並び、買い物に便利です。横浜駅にも乗り換えなしの一本で行けます。)
天井までの玄関収納付で、家族の履物が多くても安心。出勤前の身支度チェックに欠かせない姿見付です。
天井までの玄関収納付で、家族の履物が多くても安心。出勤前の身支度チェックに欠かせない姿見付です。
家族の履物が多くても安心な収納力。白をメインにした明るい内装。いつでもキレイな玄関を保ちたいですね。
家族の履物が多くても安心な収納力。白をメインにした明るい内装。いつでもキレイな玄関を保ちたいですね。
玄関前には宅配BOX機能付門柱が設置されています。不在にすることが多い忙しいご家族に嬉しい設備です。
玄関前には宅配BOX機能付門柱が設置されています。不在にすることが多い忙しいご家族に嬉しい設備です。

この物件のココがオススメ!

<C棟>「十日市場」駅徒歩7分! 太陽光パネル搭載+ハイブリッド給湯器設置 ZEH水準の省エネルギー、低炭素住宅 床暖房あり 広々パントリー付きLDK 東・北角地につき開放感あり◎

お気軽にどうぞ!

資料請求 現地見学 電話でお問い合わせ
0120-150-580

地図

申し訳ありません
こちらは会員限定機能です

会員登録で利用できる6つの便利機能

詳しく見る

お気軽にどうぞ!

資料請求 現地見学 電話でお問い合わせ
0120-150-580

頭金0万円・金利0.495%の場合

ボーナス時(年2回)お支払額

0

この物件の月々のお支払額

201,370

年収に対する返済比率

81

  • ※会員登録し、詳細情報を記入されますと、全ての物件で自動的に金額が表示され、大変便利です。
  • ※まだ会員登録をされていない方は、下記チェック欄をご記入ください。
  • ※上記計算は物件価格7,189万円+諸経費 8%込みの金額による結果となります。
  • ※返済金額はあくまでも目安です。

お客様の条件からシミュレーションするには?

会員登録
マイページから登録

金利

直接入力する

ボーナス払い(年2回)

返済年数

頭金

直接入力する

 万円(半角数字)

年収

 万円(半角数字)

約400m

スーパー

周辺環境:そうてつローゼン十日市場店(清潔な店内と品質にこだわった品揃えで地元の人に愛されるスーパー。2階に100円ショップがあり便利。)

スーパー

約400m

約1,500m

コンビニ

周辺環境:セブンイレブン横浜十日市場店(時間を問わず、幅広い品物が揃うコンビニエンスストア。本物件より徒歩2分と気楽に立ち寄れる近さです。)

コンビニ

約1,500m

約400m

スーパー

周辺環境:ダイエー十日市場店(食品の他に日用品やヘルスケアも取扱う大型スーパー。ベーカリー、クリーニング、100円ショップあり。)

スーパー

約400m

約80m

郵便局

周辺環境:横浜十日市場郵便局(レターパック、ゆうメールなどお得な配送サービスがある郵便局。ATMもあり近くにあると便利ですね。)

郵便局

約80m

約80m

幼稚園・保育園

周辺環境:みどりさくら保育園(子どもの持つ生きる力が発揮できるよう援助していく保育園。栽培や料理を通して食への興味を育てます。)

幼稚園・保育園

約80m

約400m

幼稚園・保育園

周辺環境:あさひが丘幼稚園(恵まれた環境に位置する幼稚園。自然に触れ、丈夫な体に豊かな感性をもった子どもの育成に努めています。)

幼稚園・保育園

約400m

約200m

小学校

周辺環境:十日市場小学校(校舎が新しく綺麗な小学校。各教室に壁の仕切りがない珍しい設計で、明るく開放的な空間の中で勉強します。)

小学校

約200m

約300m

中学校

周辺環境:十日市場中学校(令和6年に創立60周年を迎えた広い体育館のある中学校。教育目標は「自ら学び、つながり、共に生きる」)

中学校

約300m

約500m

周辺環境:十日市場駅(駅の周りにはスーパーやコンビニが立ち並び、買い物に便利です。横浜駅にも乗り換えなしの一本で行けます。)

約500m

価格 7,189万円
物件種別 新築一戸建て
間取り 4LDK
所在地 横浜市緑区 十日市場町
交通
  • 横浜線「十日市場」駅 徒歩 7 分
  • 田園都市線「青葉台」駅 バス停「十日市場駅」まで 徒歩 7 分 バス利用 12分
土地面積 103.22㎡
建物面積 104.44㎡
学区 十日市場小学校、十日市場中学校
用途地域 第一種中高層住居専用
建ぺい率 60%
容積率 150%
地目 宅地
駐車場 有り カースペース
接道 東8.7m、北11.5m
権利 所有権
私道面積 無し
セットバック 無し
建物構造 木造
建物階数 2階
築年月 2025年01月
入居日 即時
都市計画 市街化区域
取引態様 仲介
物件番号 P0968-C
設備 公営水道、公共下水、宅配ロッカー、省エネルギー対策、駐車場1台、緑豊かな住宅地、閑静な住宅地、平坦地、角地、都市近郊、地盤調査済、前道6m以上、市街地が近い、整備された歩道、スーパーが近い(10分以内)、2沿線以上利用可、小学校徒歩10分以内、中学校徒歩10分以内、保育施設・幼稚園5分以内、公園5分以内、コンビニ5分以内、システムキッチン、カウンタキッチン、L型キッチン、食器洗い機付き、浄水器、IHクッキングヒーター、パントリー(食器・食品の収納庫)、ユニットバス、追い焚き、浴室乾燥機、ウォシュレット、オートバス付き、トイレ2ヶ所、浴室1坪以上、浴室に窓、暖房便座、浴室暖房、バルコニー、ワイドバルコニー、2階建、LDK18畳以上、省エネ給湯器、採光2面、南向き、全室2面採光、フローリング、リビング階段、クローゼット、収納、床下収納、下駄箱、シャンプドレッサー付き、フラット35Sに対応、年内入居可、モニタ付きインターフォン、複層ガラス、ディンプルキー、火災警報器(報知機)、通風良好、陽当り良好、24時間換気システム、建物10年保証
建築確認番号 -
特記事項 緑化地域、緑十日市場住宅団地地区地区計画、横浜市建築基準条例第3条による制限有/宅地造成工事規制区域:有/高度地区:有/準防火地域:有/日影制限:有/敷地内段差:有。 /
備考 <C棟>「十日市場」駅徒歩7分! 太陽光パネル搭載+ハイブリッド給湯器設置 ZEH水準の省エネルギー、低炭素住宅 床暖房あり 広々パントリー付きLDK 東・北角地につき開放感あり◎

こだわりポイント

  • ごみ置き場隣接
  • 建売だけど一味違うこだわり建物
  • 断熱に配慮された建物
  • 省エネに配慮された建物
  • 床暖房
  • 食器洗い洗浄乾燥機
  • 浴室換気乾燥暖房機
  • 太陽光発電システム
  • 運転ラクラク生活
  • 子供の多い街に住む
  • LDKは1階に
  • 2階建て住宅限定
  • シューズインクローク
  • リビングイン階段
  • LDK18帖以上
  • 広々バルコニー
  • 対面キッチン
  • 浴室1坪以上
  • パントリー
  • 小学校10分以内
  • スーパー10分以内
  • コンビニ10分以内
  • 小児科医院10分以内
  • 保育園10分以内
  • 幼稚園10分以内
  • 公園10分以内
  • 都市ガス
  • フラット35利用可
  • 角地限定
  • 道路広々(5m以上)
  • 日当たり良好
  • 3階建て以上建築可能地域

お気軽にどうぞ!

資料請求 現地見学 電話でお問い合わせ
0120-150-580

このエリアでお探しの方へ

横浜市青葉区藤が丘2丁目 新築一戸建 6680万円 1号棟

田園都市線「藤が丘」駅 徒歩 4 分

田園都市線「青葉台」駅 徒歩 15 分

横浜市青葉区 藤が丘2丁目

6,680万円

4LDK

横浜市青葉区藤が丘2丁目 新築一戸建 7580万円 1号棟

田園都市線「藤が丘」駅 徒歩 10 分

田園都市線「青葉台」駅 徒歩 19 分

横浜市青葉区 藤が丘2丁目

7,580万円

4SLDK

横浜市緑区十日市場町 新築一戸建 6889万円 D棟

横浜線「十日市場」駅 徒歩 7 分

田園都市線「青葉台」駅 バス停「十日市場駅」まで 徒歩 7 分 バス利用 12分

横浜市緑区 十日市場町

6,889万円

3SLDK

横浜市青葉区榎が丘 新築一戸建 6980万円 1号棟

田園都市線「青葉台」駅 徒歩 16 分

田園都市線「長津田」駅 徒歩 24 分

横浜市青葉区 榎が丘

6,980万円

4LDK

横浜市青葉区藤が丘2丁目 新築一戸建 7480万円 2号棟

田園都市線「藤が丘」駅 徒歩 10 分

田園都市線「青葉台」駅 徒歩 19 分

横浜市青葉区 藤が丘2丁目

7,480万円

3LDK

横浜市緑区東本郷3丁目 新築一戸建 7480万円

横浜線「鴨居」駅 徒歩 14 分

ブルーライン「片倉町」駅 バス停「菅田町」まで 徒歩 7 分 バス利用 16分

横浜市緑区 東本郷3丁目

7,480万円

4LDK

横浜市青葉区桂台2丁目 中古一戸建 4599万円

こどもの国線「恩田」駅 徒歩 20 分

田園都市線「青葉台」駅 バス停「桂台遊水池前」まで 徒歩 3 分 バス利用 11分

横浜市青葉区 桂台2丁目

4,599万円

3LDK

横浜市青葉区桂台2丁目 中古一戸建 4999万円

田園都市線「青葉台」駅 バス停「桂台公園入口」まで 徒歩 6 分 バス利用 5分

こどもの国線「こどもの国」駅 徒歩 24 分

横浜市青葉区 桂台2丁目

4,999万円

3LDK

横浜市青葉区奈良町 新築一戸建 5080万円 2号棟

田園都市線「青葉台」駅 バス停「奈良小学校前」まで 徒歩 6 分 バス利用 16分

こどもの国線「こどもの国」駅 徒歩 14 分

横浜市青葉区 奈良町

5,080万円

4LDK

値下げしました! 「十日市場」駅徒歩15分 新築一戸建て(6) 対面キッチン

横浜線「十日市場」駅 徒歩 15 分

田園都市線「青葉台」駅 バス停「中山谷」まで 徒歩 3 分 バス利用 15分

横浜市緑区 霧が丘1丁目

5,480万円

4LDK

今週末モデルハウス見学会開催中!「中山」駅徒歩12分 新築一戸建て エコジョーズ

横浜線「中山」駅 徒歩 12 分

田園都市線「青葉台」駅 バス停「小山町」まで 徒歩 13 分 バス利用 14分

横浜市緑区 三保町

5,480万円

3SLDK

横浜市青葉区桂台2丁目 中古一戸建 6480万円

田園都市線「青葉台」駅 バス停「桂台公園入口」まで 徒歩 4 分 バス利用 5分

こどもの国線「恩田」駅 徒歩 22 分

横浜市青葉区 桂台2丁目

6,480万円

4LDK

お気軽にどうぞ!

資料請求 現地見学 電話でお問い合わせ
0120-150-580
来店予約