川崎市多摩区東三田3丁目 新築一戸建 3980万円

外観:小田急線「生田」駅徒歩18分の閑静な住宅街に位置したデザイナーズ住宅!静かな日常を送る事が出来る住環境です。

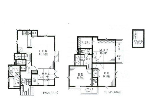
間取り

オープンな空間を生み出す、広がりとゆとり。家族と過ごす時間を大切にしたい方にぴったりのゆとりある住空間です。日差しがリビングの隅々までしっかりと届きます。

新しいキッチンは食事の支度も楽しく出来る。お手伝いをしてくれるお子様と並びながら準備や片付けが出来るキッチンは、ご家族のコミュニケーションを育む場として活躍します。

ナチュラル系のアクセントクロスです。世代を問わず人気で、インテリアも合わせやすい色調ですので、落ち着きと安らぎを感じさせる雰囲気になっています。

対面式のカウンターキッチンですので、出来上がったお料理をカウンターに並べてお子様が運ぶなど、お手伝いの時間も増えそうですね。

スライド収納付きのシステムキッチン。料理器具なども収納できて出し入れもスムーズ。収納量もたっぷりなので料理器具やストック調味料なども入れられる。

家族だんらんのスペースとなるリビング。家具の配置がしやすい広さを確保しつつ、窓が多い設計は色々な角度から光が取り込めるこだわりの間取りです。

想像以上の質感が訪れる者の心を離さない。フローリング素材、窓の配置、壁面タイル、カラーバランス、どれをとってもワンランク上の仕上がり。

階段部分には自然の光を取り込むことの出来る、窓を配置しており明るい空間!お掃除の際には空気の換気などにも便利です。

何かと便利な収納。掃除機など日常的に使うけど、片づけ場所に困る、そんなものを収納するのにピッタリです。すっきりとした空間に保ちたいですね。

大切な家族が集まるからこそLDKにはこだわりたい。日当たりのよい広いLDKを、子供たちが元気に走り回っている姿を見た時「広い家にして良かった」と思う。

シックな色合いを基調にしたフローリングは心地よく飽きのない色合いで、カーテン、家具などのインテリアを合わせやすいのもうれしい。

全居室には大型の収納クローゼットを完備。普段使いのお洋服や小物はもちろん、季節物のお洋服などもしっかりと整理整頓出来る。居室空間を隅々まで使えるのが嬉しい。

ある時はお子様のスタディスペースとして、観賞用のディスプレイとして、などいろいろな用途に活用できるカウンタースペース。

2面採光でお部屋の隅々まで明るい印象の居室。おひさまの光を、爽やかな風をたっぷりと取り込めます。居室内はいつも明るいので、毎日の生活も自然と明るくなりますね。

収納力が豊富な大型クローゼット。普段着やスーツはもちろんのこと、コート類などもしっかり掛けられます。奥行きもあり、部屋がスッキリしますね。

周辺環境:生田駅(付近には明治大学、専修大学、聖マリアンナ医科大学など大学が点在し、緑が多く残る落ち着きある街並みでありながら、買い物施設や飲食店も充実しています。)

周辺環境:JR登戸駅 (JR南武線と小田急線の乗換駅です。乗換便利な表参道、大手町へもアクセスしやすいです。)

周辺環境:オーケー生田店(衝撃の安さ「OKストア」 大容量でお子様のいるご家庭にも嬉しい大型ディスカウントスーパー!駐車場は47台分あるので車でも安心。夜21時半まで営業。)

周辺環境:いなげや川崎生田店(9時30分~22時迄営業 駐車場も88台完備!)

周辺環境:生田緑地(爽やかな風が通り、豊かな自然をそのままいかした広大な緑地。広場、プラネタリウム、バラ園など、幅広い世代が楽しめるのも魅力です。)

周辺環境:保育園シュエット生田(川崎市認定保育園、特色は子どもから保護者、保護者から保育者と皆がよい笑顔で生活していくことを大切にしてます。)

周辺環境:アスク生田保育園(園目標は「笑顔で、明るく元気に挨拶しよう」「思いやりの気持ちを大切に」です。)

周辺環境:三田小学校(歴史ある小学校、児童数約630人が豊かな人間性を培い、心身ともにたうましく、実践力のある三田っ子の育成)

周辺環境:生田中学校(成長の過程でより濃い時間を過ごす3年間。ここで過ごす時間は、お子様にとって、とても大切な思い出となるはずです。)

散らかりがちな玄関をスッキリと保てる玄関収納は、家の中に入る時一番最初に目に付く場所だからこだわりたい。落ち着いた色目が、室内のカラーやデザインと調和。

鏡の裏に収納棚を確保した三面鏡を採用。化粧品や歯ブラシなどを機能的に収納。また、三面鏡の本当の利点は三枚の鏡を合わせることで、頭の側面や背面が見れること。

ゆったり入れる一坪バス。足を伸ばして入れるサイズは一日の疲れを癒すのに嬉しい広さ。お子様と一緒の入浴でも充分な広さです。

ウォシュレット、暖房便座機能付のトイレです。従来型に比べ節水効果があり、お手入れもしやすいので、家計も家事の負担も軽減してくれます。






























この物件のココがオススメ!
静かな日常を送ることができる閑静な住宅街の2階建て住宅 食洗機・浴室乾燥機など充実の標準設備
地図
頭金0万円・金利0.495%の場合
ボーナス時(年2回)お支払額
0円
この物件の月々のお支払額
111,474円
年収に対する返済比率
45%
- ※会員登録し、詳細情報を記入されますと、全ての物件で自動的に金額が表示され、大変便利です。
- ※まだ会員登録をされていない方は、下記チェック欄をご記入ください。
- ※上記計算は物件価格3,980万円+諸経費 8%込みの金額による結果となります。
- ※返済金額はあくまでも目安です。
駅
約1,400m
駅
約2,600m
スーパー
約800m
スーパー
約1,500m
公園
約1,300m
幼稚園・保育園
約1,400m
幼稚園・保育園
約1,500m
小学校
約500m
中学校
約950m
価格 | 3,980万円 |
---|---|
物件種別 | 新築一戸建て |
間取り | 2SLDK |
所在地 | 川崎市多摩区 東生田3丁目 |
交通 |
|
土地面積 | 83.06㎡ |
建物面積 | 95.94㎡ |
学区 | 三田小学校、生田中学校 |
用途地域 | 第二種中高層住居専用 |
建ぺい率 | 60% |
容積率 | 160% |
地目 | 宅地 |
駐車場 | 有り ビルトイン車庫 |
接道 | 西4m |
権利 | 所有権 |
私道面積 | 無し |
セットバック | 無し |
建物構造 | 木造 |
建物階数 | 2階 |
築年月 | 2025年06月 |
入居日 | 即時 |
都市計画 | 市街化区域 |
取引態様 | 仲介 |
物件番号 | A1470 |
設備 | 公営水道、公共下水、宅配ロッカー、省エネルギー対策、ビルトインガレージ、駐車場1台、区画整理地内、緑豊かな住宅地、閑静な住宅地、都市近郊、地盤調査済、市街地が近い、周辺交通量少なめ、スーパーが近い(10分以内)、2沿線以上利用可、小学校徒歩10分以内、保育施設・幼稚園5分以内、システムキッチン、ガスコンロ、ガス3口、カウンタキッチン、L型キッチン、食器洗い機付き、浄水器、ユニットバス、追い焚き、浴室乾燥機、ウォシュレット、オートバス付き、トイレ2ヶ所、浴室1坪以上、浴室に窓、暖房便座、浴室暖房、バルコニー、2階建、LDK15畳以上、省エネ給湯器、人感照明センサー、採光3面、フローリング、全室フローリング、クローゼット、収納、下駄箱、シャンプドレッサー付き、年内入居可、モニタ付きインターフォン、カードキー、複層ガラス、火災警報器(報知機)、通風良好、陽当り良好、24時間換気システム、建物10年保証 |
建築確認番号 | - |
特記事項 | 景観法:有/宅地造成工事規制区域:有/高度地区:有/準防火地域:有/日影制限:有/敷地内段差:有/高さ限度:有/建物面積のうち車庫部分面積11.17m2含む、間取Sは納戸。 / |
備考 | 静かな日常を送ることができる閑静な住宅街の2階建て住宅 食洗機・浴室乾燥機など充実の標準設備 |
こだわりポイント
- プロパンガス
- 建売だけど一味違うこだわり建物
- カッコイイ系のこだわり建物
- 断熱に配慮された建物
- 食器洗い洗浄乾燥機
- 浴室換気乾燥暖房機
- 子供の多い街に住む
- 区画整理分譲地内に住む
- 自然を感じる暮らし
- 2階建て住宅限定
- LDKは2階に
- LDK15帖以上
- 広々バルコニー
- 対面キッチン
- 浴室1坪以上
- 小学校10分以内
- 大規模公園10分以内
- スーパー10分以内
- コンビニ10分以内
- 保育園10分以内
- 幼稚園10分以内
- 公園10分以内
- 屋根付きカースペース
- 3階建て以上建築可能地域