1. トップページ
  2. 川崎市宮前区馬絹4丁目 新築一戸建 5080万円 2号棟

川崎市宮前区馬絹4丁目 新築一戸建 5080万円 2号棟

価格
5,080万円
物件種別
新築一戸建て
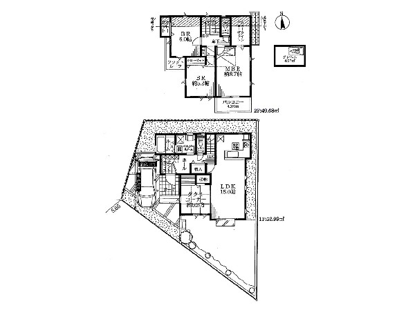
間取り
3SLDK
所在地
川崎市宮前区 馬絹4丁目
交通
  • 田園都市線「宮崎台」駅 徒歩 20 分
  • 田園都市線「鷺沼」駅 バス停「宮前休日診療所」まで 徒歩 3 分 バス利用 7分
土地面積
99.72㎡
建物面積
102.88㎡
  • 前回情報更新日 2026.04.24
  • 次回情報更新予定日 2026.05.08
資料請求 現地見学 電話でお問い合わせ
0120-150-580
外観:現地写真(建築前)
外観:現地写真(建築前)
間取り
間取り
外観:現地写真(建築前)
外観:現地写真(建築前)
外観:現地写真(建築前)
外観:現地写真(建築前)
周辺環境:ライフ東有馬店(食べ盛りのお子様がいるご家庭の強い味方、魅力の量・価格のスーパーが近くにあると、とても心強いですね。)
周辺環境:ライフ東有馬店(食べ盛りのお子様がいるご家庭の強い味方、魅力の量・価格のスーパーが近くにあると、とても心強いですね。)
周辺環境:MEGAドン・キホーテ東名川崎店(店舗が広く品揃えも豊富です。肉、魚、野菜など生鮮食料品もあり、スーパー感覚で買い物もできます。)
周辺環境:MEGAドン・キホーテ東名川崎店(店舗が広く品揃えも豊富です。肉、魚、野菜など生鮮食料品もあり、スーパー感覚で買い物もできます。)
周辺環境:ロピア・ノジマ馬絹店(電気店のノジマと同じ建物にあります。ロープライスのユートピアを作ることを目標にしています。 - コピー)
周辺環境:ロピア・ノジマ馬絹店(電気店のノジマと同じ建物にあります。ロープライスのユートピアを作ることを目標にしています。 - コピー)
周辺環境:宮崎小学校(お子様が一日の中でも長い時間を過ごす小学校。どんどん成長していくお子様の姿が目に浮かびます。)
周辺環境:宮崎小学校(お子様が一日の中でも長い時間を過ごす小学校。どんどん成長していくお子様の姿が目に浮かびます。)
周辺環境:有馬白百合幼稚園(緑に囲まれた理想的な環境でひとりひとりの違いを大切にし園の空間全体で想像力を育みます。)
周辺環境:有馬白百合幼稚園(緑に囲まれた理想的な環境でひとりひとりの違いを大切にし園の空間全体で想像力を育みます。)
周辺環境:宮崎中学校(主に4つの小学校から生徒が入学し、全校生徒900名を超す大規模校です。地域と深いつながりを持つなかで生徒たちの教育活動に取り組んでいます。)
周辺環境:宮崎中学校(主に4つの小学校から生徒が入学し、全校生徒900名を超す大規模校です。地域と深いつながりを持つなかで生徒たちの教育活動に取り組んでいます。)

この物件のココがオススメ!

宮崎台駅徒歩圏 周辺に生活至便施設多数 2階LDKはプライバシーにも配慮 省エネ給湯器や食洗機など設備充実

お気軽にどうぞ!

資料請求 現地見学 電話でお問い合わせ
0120-150-580

地図

申し訳ありません
こちらは会員限定機能です

会員登録で利用できる6つの便利機能

詳しく見る

お気軽にどうぞ!

資料請求 現地見学 電話でお問い合わせ
0120-150-580

頭金0万円・金利0.495%の場合

ボーナス時(年2回)お支払額

0

この物件の月々のお支払額

142,287

年収に対する返済比率

57

  • ※会員登録し、詳細情報を記入されますと、全ての物件で自動的に金額が表示され、大変便利です。
  • ※まだ会員登録をされていない方は、下記チェック欄をご記入ください。
  • ※上記計算は物件価格5,080万円+諸経費 8%込みの金額による結果となります。
  • ※返済金額はあくまでも目安です。

お客様の条件からシミュレーションするには?

会員登録
マイページから登録

金利

直接入力する

ボーナス払い(年2回)

返済年数

頭金

直接入力する

 万円(半角数字)

年収

 万円(半角数字)

約450m

スーパー

周辺環境:ライフ東有馬店(食べ盛りのお子様がいるご家庭の強い味方、魅力の量・価格のスーパーが近くにあると、とても心強いですね。)

スーパー

約450m

約800m

その他環境写真

周辺環境:MEGAドン・キホーテ東名川崎店(店舗が広く品揃えも豊富です。肉、魚、野菜など生鮮食料品もあり、スーパー感覚で買い物もできます。)

その他環境写真

約800m

約800m

スーパー

周辺環境:ロピア・ノジマ馬絹店(電気店のノジマと同じ建物にあります。ロープライスのユートピアを作ることを目標にしています。 - コピー)

スーパー

約800m

約850m

小学校

周辺環境:宮崎小学校(お子様が一日の中でも長い時間を過ごす小学校。どんどん成長していくお子様の姿が目に浮かびます。)

小学校

約850m

約900m

幼稚園・保育園

周辺環境:有馬白百合幼稚園(緑に囲まれた理想的な環境でひとりひとりの違いを大切にし園の空間全体で想像力を育みます。)

幼稚園・保育園

約900m

約1,300m

中学校

周辺環境:宮崎中学校(主に4つの小学校から生徒が入学し、全校生徒900名を超す大規模校です。地域と深いつながりを持つなかで生徒たちの教育活動に取り組んでいます。)

中学校

約1,300m

価格 5,080万円
物件種別 新築一戸建て
間取り 3SLDK
所在地 川崎市宮前区 馬絹4丁目
交通
  • 田園都市線「宮崎台」駅 徒歩 20 分
  • 田園都市線「鷺沼」駅 バス停「宮前休日診療所」まで 徒歩 3 分 バス利用 7分
土地面積 99.72㎡
建物面積 102.88㎡
学区 宮崎小学校、宮崎中学校
用途地域 第一種中高層住居専用
建ぺい率 60%
容積率 160%
地目 宅地
駐車場 有り カースペース
接道 東2.6m
権利 所有権
私道面積 無し
セットバック 無し
建物構造 木造
建物階数 2階
築年月 2025年12月
入居日 即時
都市計画 市街化区域
取引態様 仲介
物件番号 A1454-2
設備 公営水道、公共下水、シックハウス対策、駐車場1台、閑静な住宅地、都市近郊、地盤調査済、市街地が近い、スーパーが近い(10分以内)、保育施設・幼稚園5分以内、公園5分以内、コンビニ5分以内、システムキッチン、ガス3口、食器洗い機付き、浄水器、ユニットバス、追い焚き、浴室乾燥機、ウォシュレット、オートバス付き、トイレ2ヶ所、浴室1坪以上、浴室に窓、暖房便座、バルコニー、バルコニー2面、南面バルコニー、3階建以上、LDK15畳以上、省エネ給湯器、採光3面、南向き、全室2面採光、クローゼット、収納、床下収納、下駄箱、全居室収納、シャンプドレッサー付き、フラット35Sに対応、モニタ付きインターフォン、複層ガラス、火災警報器(報知機)、通風良好、陽当り良好、24時間換気システム、建物10年保証
建築確認番号 第25KAK建確00777号
特記事項 崖上につき建築制限:有/不整形地:有/景観法:有/宅地造成工事規制区域:有/高度地区:有/準防火地域:有/日影制限:有/高さ限度:有/敷地面積に路地状部分約30平米含む、間取りSは納戸。 /
備考 宮崎台駅徒歩圏 周辺に生活至便施設多数 2階LDKはプライバシーにも配慮 省エネ給湯器や食洗機など設備充実

こだわりポイント

  • 崖下・崖上
  • 道路狭い(4メートル未満)
  • 敷地延長(旗竿地)
  • 断熱に配慮された建物
  • 省エネに配慮された建物
  • 食器洗い洗浄乾燥機
  • 浴室換気乾燥暖房機
  • 外食を楽しめる生活
  • LDKは1階に
  • ウォークインクローゼット
  • リビングイン階段
  • LDK15帖以上
  • 対面キッチン
  • 浴室1坪以上
  • 小学校10分以内
  • スーパー10分以内
  • コンビニ10分以内
  • 小児科医院10分以内
  • 保育園10分以内
  • 幼稚園10分以内
  • 公園10分以内
  • 都市ガス
  • 屋根付きカースペース
  • 眺望良好
  • 道路と段差無し

お気軽にどうぞ!

資料請求 現地見学 電話でお問い合わせ
0120-150-580

このエリアでお探しの方へ

川崎市宮前区南野川2丁目 新築一戸建 4780万円 2号棟

グリーンライン「東山田」駅 徒歩 23 分

田園都市線「鷺沼」駅 バス停「久末」まで 徒歩 4 分 バス利用 22分

川崎市宮前区 南野川2丁目

4,780万円

4LDK

川崎市宮前区南野川1丁目 新築一戸建 4780万円 1号棟

田園都市線「鷺沼」駅 バス停「子の神」まで 徒歩 2 分 バス利用 19分

グリーンライン「北山田」駅 徒歩 23 分

川崎市宮前区 南野川1丁目

4,780万円

2LDK+2S

川崎市宮前区南野川2丁目 新築一戸建 4980万円 B号棟

グリーンライン「北山田」駅 徒歩 23 分

田園都市線「鷺沼」駅 バス停「稲荷坂」まで 徒歩 6 分 バス利用 20分

川崎市宮前区 南野川2丁目

4,980万円

4LDK

川崎市宮前区梶ケ谷 新築一戸建 4980万円 12号棟

田園都市線「宮崎台」駅 徒歩 22 分

南武線「武蔵新城」駅 バス停「金山」まで 徒歩 5 分 バス利用 19分

川崎市宮前区 梶ケ谷

4,980万円

4LDK

川崎市宮前区東有馬1丁目 新築一戸建 5250万円

田園都市線「宮前平」駅 徒歩 20 分

田園都市線「鷺沼」駅 バス停「寺台」まで 徒歩 9 分 バス利用 12分

川崎市宮前区 東有馬1丁目

5,250万円

3LDK

川崎市宮前区南野川3丁目 新築一戸建 4780万円 A号棟

田園都市線「梶が谷」駅 バス停「上野川」まで 徒歩 8 分 バス利用 6分

南武線「武蔵新城」駅 バス停「野川郵便局前」まで 徒歩 2 分 バス利用 12分

川崎市宮前区 南野川3丁目

4,780万円

3SLDK

川崎市宮前区水沢3丁目 新築一戸建 4780万円 B7号棟

田園都市線「たまプラーザ」駅 バス停「美しヶ丘西一丁目」まで 徒歩 8 分 バス利用 9分

南武線「武蔵溝ノ口」駅 バス停「天王下」まで 徒歩 3 分 バス利用 18分

川崎市宮前区 水沢3丁目

4,780万円

4LDK

川崎市宮前区水沢3丁目 新築一戸建 4780万円 B5号棟

田園都市線「たまプラーザ」駅 バス停「美しヶ丘西一丁目」まで 徒歩 8 分 バス利用 9分

南武線「武蔵溝ノ口」駅 バス停「天王下」まで 徒歩 3 分 バス利用 18分

川崎市宮前区 水沢3丁目

4,780万円

4LDK

川崎市宮前区水沢3丁目 新築一戸建 4780万円 B6号棟

田園都市線「たまプラーザ」駅 バス停「美しヶ丘西一丁目」まで 徒歩 8 分 バス利用 9分

南武線「武蔵溝ノ口」駅 バス停「天王下」まで 徒歩 3 分 バス利用 18分

川崎市宮前区 水沢3丁目

4,780万円

4LDK

川崎市宮前区初山2丁目 新築一戸建 4880万円 1号棟

田園都市線「溝の口」駅 バス停「初山」まで 徒歩 1 分 バス利用 16分

小田急線「向ヶ丘遊園」駅 バス停「原ヶ谷」まで 徒歩 7 分 バス利用 15分

川崎市宮前区 初山2丁目

4,880万円

2SLDK

川崎市宮前区水沢3丁目 新築一戸建 4880万円 B4号棟

田園都市線「たまプラーザ」駅 バス停「美しヶ丘西一丁目」まで 徒歩 8 分 バス利用 9分

南武線「武蔵溝ノ口」駅 バス停「天王下」まで 徒歩 3 分 バス利用 18分

川崎市宮前区 水沢3丁目

4,880万円

4LDK

川崎市宮前区水沢3丁目 新築一戸建 4880万円 B2号棟

田園都市線「たまプラーザ」駅 バス停「美しヶ丘西一丁目」まで 徒歩 8 分 バス利用 9分

南武線「武蔵溝ノ口」駅 バス停「天王下」まで 徒歩 3 分 バス利用 18分

川崎市宮前区 水沢3丁目

4,880万円

4LDK

お気軽にどうぞ!

資料請求 現地見学 電話でお問い合わせ
0120-150-580
来店予約