1. トップページ
  2. 建物完成しました! 今週末内覧会開催中!「瀬谷」駅徒歩6分 新築一戸建て 閑静な住宅地

建物完成しました! 今週末内覧会開催中!「瀬谷」駅徒歩6分 新築一戸建て 閑静な住宅地

価格
5,480万円
物件種別
新築一戸建て
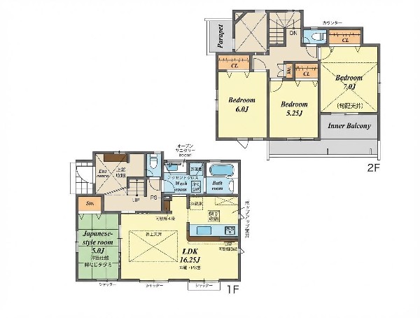
間取り
4LDK
所在地
横浜市瀬谷区 瀬谷2丁目
交通
  • 相模鉄道線「瀬谷」駅 徒歩 6 分
  • いずみ野線「いずみ野」駅 バス停「瀬谷駅南口」まで 徒歩 6 分 バス利用 24分
土地面積
86.29㎡
建物面積
85.91㎡
  • 前回情報更新日 2026.02.17
  • 次回情報更新予定日 2026.03.03
資料請求 現地見学 電話でお問い合わせ
0120-150-580
間取図
間取図

この物件のココがオススメ!

相鉄本線「瀬谷」駅徒歩6分。緑豊かで閑静な住宅地。4LDKのゆとりの間取り。約16帖LDKは対面式キッチン・リビングイン階段で、ご家族での会話が弾みます。

お気軽にどうぞ!

資料請求 現地見学 電話でお問い合わせ
0120-150-580

地図

申し訳ありません
こちらは会員限定機能です

会員登録で利用できる6つの便利機能

詳しく見る

お気軽にどうぞ!

資料請求 現地見学 電話でお問い合わせ
0120-150-580

頭金0万円・金利0.495%の場合

ボーナス時(年2回)お支払額

0

この物件の月々のお支払額

153,491

年収に対する返済比率

61

  • ※会員登録し、詳細情報を記入されますと、全ての物件で自動的に金額が表示され、大変便利です。
  • ※まだ会員登録をされていない方は、下記チェック欄をご記入ください。
  • ※上記計算は物件価格5,480万円+諸経費 8%込みの金額による結果となります。
  • ※返済金額はあくまでも目安です。

お客様の条件からシミュレーションするには?

会員登録
マイページから登録

金利

直接入力する

ボーナス払い(年2回)

返済年数

頭金

直接入力する

 万円(半角数字)

年収

 万円(半角数字)
価格 5,480万円
物件種別 新築一戸建て
間取り 4LDK
所在地 横浜市瀬谷区 瀬谷2丁目
交通
  • 相模鉄道線「瀬谷」駅 徒歩 6 分
  • いずみ野線「いずみ野」駅 バス停「瀬谷駅南口」まで 徒歩 6 分 バス利用 24分
土地面積 86.29㎡
建物面積 85.91㎡
学区 瀬谷小学校、瀬谷中学校
用途地域 第一種低層住居専用
建ぺい率 50%
容積率 100%
地目 宅地
駐車場 有り カースペース
接道 南3.8m
権利 所有権
私道面積 有 0.02㎡
セットバック 無し
建物構造 木造
建物階数 2階
築年月 2026年01月
入居日 即時
都市計画 市街化区域
取引態様 仲介
物件番号 48383
設備 公営水道、公共下水、緑豊かな住宅地、閑静な住宅地、南側道路面す、スーパーが近い(10分以内)、2沿線以上利用可、小学校徒歩10分以内、中学校徒歩10分以内、保育施設・幼稚園5分以内、公園5分以内、システムキッチン、ガス3口、I型キッチン、ユニットバス、追い焚き、ウォシュレット、トイレ2ヶ所、浴室に窓、バルコニー、南面バルコニー、2階建、LDK15畳以上、採光2面、全室2面採光、フローリング、リビング階段、クローゼット、収納、下駄箱、シャンプドレッサー付き、モニタ付きインターフォン、インターフォン、24時間換気システム、建物10年保証
建築確認番号 -
特記事項 宅地造成工事規制区域 高度地区 準防火地域 日影制限 敷地内段差 敷地面積最低限度 建物高さ10m以下 建築基準法第22条区域 過小宅地 傾斜地有 東側隣地より門柱・下水枡越境有(解消予定(覚書無)) 前所有者より敷地内に井戸があり、前所有者にて井戸祓い・埋め戻し済 宅地造成工事規制区域:有/高度地区:有/準防火地域:有/日影制限:有/敷地内段差:有/敷地面積最低限度:有/高さ限度:有/建築基準法第22条区域 過小宅地 傾斜地有 東側隣地より門柱・下水枡越境有(解消予定(覚書無)) 前所有者より敷地内に井戸があり、前所有者にて井戸祓い・埋め戻し済。 /
備考 相鉄本線「瀬谷」駅徒歩6分。緑豊かで閑静な住宅地。4LDKのゆとりの間取り。約16帖LDKは対面式キッチン・リビングイン階段で、ご家族での会話が弾みます。

こだわりポイント

  • 道路狭い(4メートル未満)
  • 急行電車でスピード通勤
  • 大人の二人暮らし
  • LDKは1階に
  • 2階建て住宅限定
  • リビングイン階段
  • LDK15帖以上
  • 対面キッチン
  • 小学校10分以内
  • スーパー10分以内
  • コンビニ10分以内
  • 小児科医院10分以内
  • 保育園10分以内
  • 幼稚園10分以内
  • 公園10分以内
  • 都市ガス
  • 南道路限定

お気軽にどうぞ!

資料請求 現地見学 電話でお問い合わせ
0120-150-580

このエリアでお探しの方へ

今週末モデルハウス見学会開催中!「桜ケ丘」「瀬谷」駅利用 新築一戸建て(1) カースペース2台

江ノ島線「桜ヶ丘」駅 徒歩 18 分

相模鉄道線「瀬谷」駅 徒歩 26 分

横浜市瀬谷区 北新

5,180万円

4LDK

今週末モデルハウス見学会開催中!「瀬谷」駅徒歩15分 新築一戸建て(9) 対面キッチン

相模鉄道線「瀬谷」駅 徒歩 15 分

相模鉄道線「大和」駅 バス停「市民活動ベテルギウス」まで 徒歩 16 分 バス利用 3分

横浜市瀬谷区 本郷1丁目

5,380万円

4LDK

今週末モデルハウス見学会開催中!「桜ケ丘」「瀬谷」駅利用 新築一戸建て(21) カースペース2台

江ノ島線「桜ヶ丘」駅 徒歩 18 分

相模鉄道線「瀬谷」駅 徒歩 26 分

横浜市瀬谷区 北新

5,380万円

4LDK

今週末モデルハウス見学会開催中!「桜ケ丘」「瀬谷」駅利用 新築一戸建て(20) カースペース2台

江ノ島線「桜ヶ丘」駅 徒歩 18 分

相模鉄道線「瀬谷」駅 徒歩 26 分

横浜市瀬谷区 北新

5,380万円

4LDK

値下げしました!「三ツ境」駅利用 新築一戸建て(1) エコジョーズ

相模鉄道線「三ッ境」駅 バス停「原店」まで 徒歩 4 分 バス利用 9分

いずみ野線「いずみ野」駅 バス停「原店」まで 徒歩 4 分 バス利用 11分

横浜市瀬谷区 阿久和西2丁目

5,399万円

3LDK

値下げしました!「三ツ境」駅利用 新築一戸建て(3) エコジョーズ

相模鉄道線「三ッ境」駅 バス停「原店」まで 徒歩 4 分 バス利用 9分

いずみ野線「いずみ野」駅 バス停「原店」まで 徒歩 4 分 バス利用 11分

横浜市瀬谷区 阿久和西2丁目

5,399万円

3LDK

建物完成しました! 今週末内覧会開催中!「瀬谷」駅徒歩14分 新築一戸建て(2) カースペース2台

相模鉄道線「瀬谷」駅 徒歩 14 分

江ノ島線「大和」駅 徒歩 22 分

横浜市瀬谷区 瀬谷6丁目

5,480万円

4LDK

値下げしました! 「瀬谷」駅利用 新築一戸建て(7) カースペース2台

相模鉄道線「瀬谷」駅 徒歩 17 分

江ノ島線「大和」駅 バス停「境橋」まで 徒歩 8 分 バス利用 3分

横浜市瀬谷区 橋戸3丁目

5,580万円

3LDK

今週末モデルハウス見学会開催中!「いずみ野」駅利用 新築一戸建て 長期優良住宅

いずみ野線「いずみ野」駅 バス停「ひなた山第一」まで 徒歩 2 分 バス利用 10分

相模鉄道線「瀬谷」駅 バス停「ひなた山第一」まで 徒歩 2 分 バス利用 15分

横浜市泉区 和泉町

5,680万円

4LDK

今週末モデルハウス見学会開催中!「瀬谷」駅利用 新築一戸建て(4)カースペース2台

相模鉄道線「瀬谷」駅 徒歩 17 分

江ノ島線「大和」駅 バス停「境橋」まで 徒歩 8 分 バス利用 3分

横浜市瀬谷区 橋戸3丁目

5,680万円

4LDK

値下げしました!建物完成しました! 今週末内覧会開催中!「瀬谷」駅利用 新築一戸建て 2面バルコニー

相模鉄道線「瀬谷」駅 徒歩 18 分

江ノ島線「大和」駅 徒歩 24 分

横浜市瀬谷区 橋戸3丁目

5,690万円

3LDK

今週末モデルハウス見学会開催中!「三ツ境」駅利用 新築一戸建て(B) カースペース並列2台

相模鉄道線「三ッ境」駅 徒歩 16 分

相模鉄道線「瀬谷」駅 徒歩 18 分

横浜市瀬谷区 南台1丁目

5,780万円

4LDK

お気軽にどうぞ!

資料請求 現地見学 電話でお問い合わせ
0120-150-580
来店予約