1. トップページ
  2. 値下げしました!今週末内覧会開催中!「生麦」駅徒歩5分 借地権付き新築一戸建て

値下げしました!今週末内覧会開催中!「生麦」駅徒歩5分 借地権付き新築一戸建て

価格
3,790万円
物件種別
新築一戸建て
間取り
4LDK
所在地
横浜市鶴見区 生麦3丁目
交通
  • 京浜急行本線「生麦」駅 徒歩 5 分
  • 京浜東北線「鶴見」駅 徒歩 26 分
土地面積
64.83㎡
建物面積
110.99㎡
  • 前回情報更新日 2025.11.13
  • 次回情報更新予定日 2025.11.27
資料請求 現地見学 電話でお問い合わせ
0120-150-580
外観:最寄り駅まで平坦徒歩5分の好立地。利便性と住環境のどちらも譲れない方は是非現地をご覧ください。
外観:最寄り駅まで平坦徒歩5分の好立地。利便性と住環境のどちらも譲れない方は是非現地をご覧ください。
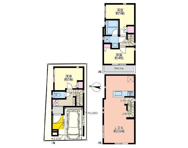
間取図
間取図
◇リビング・ダイニング◇  LDKのメインとなる大きな窓。暖かい日差しが長い時間射し込みます。(本画像はCGで作成しており、実際に現地に家具はおかれておりません。また価格に家具は含まれておりません)
◇リビング・ダイニング◇ LDKのメインとなる大きな窓。暖かい日差しが長い時間射し込みます。(本画像はCGで作成しており、実際に現地に家具はおかれておりません。また価格に家具は含まれておりません)
外観:◇玄関◇  玄関収納は家の中に入る時一番最初に目に付く場所だからこだわりたいですよね!明るくスタイリッシュな玄関は、家の雰囲気をそのまま表している家の顔です。
外観:◇玄関◇ 玄関収納は家の中に入る時一番最初に目に付く場所だからこだわりたいですよね!明るくスタイリッシュな玄関は、家の雰囲気をそのまま表している家の顔です。
◇居室◇  光が取り込みやすい2面採光の居室。日当たり良好です。(本画像はCGで作成しており、実際に現地に家具はおかれておりません。また価格に家具は含まれておりません)
◇居室◇ 光が取り込みやすい2面採光の居室。日当たり良好です。(本画像はCGで作成しており、実際に現地に家具はおかれておりません。また価格に家具は含まれておりません)
外観:◇収納たっぷりの玄関◇  玄関には大容量のシューズクロークを設けました!ブーツやスニーカーなど収納するお靴によって高さの調節が可能です。奥行もあるのでお子様の外遊びの道具なども片づけられます。
外観:◇収納たっぷりの玄関◇ 玄関には大容量のシューズクロークを設けました!ブーツやスニーカーなど収納するお靴によって高さの調節が可能です。奥行もあるのでお子様の外遊びの道具なども片づけられます。
◇キッチン◇  家族の様子を感じながらお料理できる、リビングとの一体感のある開放的な空間です。週末は家族揃ってランチなどはいかがでしょうか?
◇キッチン◇ 家族の様子を感じながらお料理できる、リビングとの一体感のある開放的な空間です。週末は家族揃ってランチなどはいかがでしょうか?
◇キッチン◇  広々キッチンは収納も大容量。お鍋やフライパン、油や調味料など沢山収納できるスペースを確保しています。キッチンがスッキリすると食事の支度や片付けがはかどります。
◇キッチン◇ 広々キッチンは収納も大容量。お鍋やフライパン、油や調味料など沢山収納できるスペースを確保しています。キッチンがスッキリすると食事の支度や片付けがはかどります。
◇リビング・ダイニング◇  リビングとダイニングは各スペースがしっかりと確保され、かつ一体感のある空間に。家具の配置もしやすい間取り設計です。キッチンは対面式採用でご家族の会話も弾みます。
◇リビング・ダイニング◇ リビングとダイニングは各スペースがしっかりと確保され、かつ一体感のある空間に。家具の配置もしやすい間取り設計です。キッチンは対面式採用でご家族の会話も弾みます。
◇リビング・ダイニング◇  ソファを置いてゆったり寛げる広さのリビングは、ご家族の憩いの場にぴったり!ダイニングテーブルやソファー、ローテーブル等の家具もしっかりと配置できます。
◇リビング・ダイニング◇ ソファを置いてゆったり寛げる広さのリビングは、ご家族の憩いの場にぴったり!ダイニングテーブルやソファー、ローテーブル等の家具もしっかりと配置できます。
◇リビング・ダイニング◇  家族と過ごす時間を大切にする方にピッタリのゆとりの住空間です。お子様が元気に走り回っても安心して見守れます。家族の笑い声が今にも目に浮かびそうですね。
◇リビング・ダイニング◇ 家族と過ごす時間を大切にする方にピッタリのゆとりの住空間です。お子様が元気に走り回っても安心して見守れます。家族の笑い声が今にも目に浮かびそうですね。
◇居室◇  光が沢山取り込める大きな窓。日差しを長時間受ける事が出来る暖かいお部屋です。もちろんペアガラスなので、遮音性に優れ、結露も発生しにくい構造。サッシ周りのカビが発生しにくくなりますね。
◇居室◇ 光が沢山取り込める大きな窓。日差しを長時間受ける事が出来る暖かいお部屋です。もちろんペアガラスなので、遮音性に優れ、結露も発生しにくい構造。サッシ周りのカビが発生しにくくなりますね。
◇居室◇  開放感のある3階の居室は日当りもよく日中は明るい日差しが射し込みます。また、道路からの目線も気になりにくいのでプライバシーも守られやすいですね。
◇居室◇ 開放感のある3階の居室は日当りもよく日中は明るい日差しが射し込みます。また、道路からの目線も気になりにくいのでプライバシーも守られやすいですね。
◇居室◇  光が取り込みやすい2面採光の居室。日当たり良好です。クローゼットを完備し、収納スペースも十分。初めてのお子様にとっての「自分の部屋」。学習デスクやベッドの配置もラクラクです。
◇居室◇ 光が取り込みやすい2面採光の居室。日当たり良好です。クローゼットを完備し、収納スペースも十分。初めてのお子様にとっての「自分の部屋」。学習デスクやベッドの配置もラクラクです。
◇居室◇  遊びも!勉強も!兄弟仲良く、家族の会話が増える間取りです。居室内はいつも明るい印象で、気持ちの良い朝を迎えられそう。毎日の生活も自然と明るくなりますね。
◇居室◇ 遊びも!勉強も!兄弟仲良く、家族の会話が増える間取りです。居室内はいつも明るい印象で、気持ちの良い朝を迎えられそう。毎日の生活も自然と明るくなりますね。
◇洗面化粧台◇  3面鏡で髪のセットやお化粧もストレスなくこなせ、朝から気分良く通勤通学に向かえそうですね!鏡の裏にはたっぷりと収納スペースを標準装備!
◇洗面化粧台◇ 3面鏡で髪のセットやお化粧もストレスなくこなせ、朝から気分良く通勤通学に向かえそうですね!鏡の裏にはたっぷりと収納スペースを標準装備!
◇浴室◇  ゆったりと寛げる広々バス。殆どの方は足を伸ばして入浴することが可能で一日の疲れを癒す貴重なバスタイムです。お子様とご一緒にリビングとは違った家族団欒のひと時をお楽しみ下さい。
◇浴室◇ ゆったりと寛げる広々バス。殆どの方は足を伸ばして入浴することが可能で一日の疲れを癒す貴重なバスタイムです。お子様とご一緒にリビングとは違った家族団欒のひと時をお楽しみ下さい。
周辺環境:FUJI馬場店(FUJI馬場店まで2300m)
周辺環境:FUJI馬場店(FUJI馬場店まで2300m)
周辺環境:イトーヨーカ堂鶴見店(イトーヨーカ堂鶴見店まで2200m)
周辺環境:イトーヨーカ堂鶴見店(イトーヨーカ堂鶴見店まで2200m)
周辺環境:横浜市生麦地区センター(横浜市生麦地区センターまで300m)
周辺環境:横浜市生麦地区センター(横浜市生麦地区センターまで300m)
周辺環境:横浜市立生麦小学校(横浜市立生麦小学校まで200m)
周辺環境:横浜市立生麦小学校(横浜市立生麦小学校まで200m)
周辺環境:横浜市立生麦中学校(横浜市立生麦中学校まで1200m)
周辺環境:横浜市立生麦中学校(横浜市立生麦中学校まで1200m)
周辺環境:生麦公園(生麦公園まで230m)
周辺環境:生麦公園(生麦公園まで230m)
周辺環境:生麦神明公園(生麦神明公園まで360m)
周辺環境:生麦神明公園(生麦神明公園まで360m)
周辺環境:生麦病院(生麦病院まで500m)
周辺環境:生麦病院(生麦病院まで500m)
周辺環境:生麦保育園(生麦保育園まで260m)
周辺環境:生麦保育園(生麦保育園まで260m)

この物件のココがオススメ!

京急「生麦」駅から徒歩5分。通勤・通学に便利な立地。日差しが取り込みやすく、プライバシーに配慮した2階リビング。浴室換気暖房乾燥機・食洗器他設備充実。

お気軽にどうぞ!

資料請求 現地見学 電話でお問い合わせ
0120-150-580

地図

申し訳ありません
こちらは会員限定機能です

会員登録で利用できる6つの便利機能

詳しく見る

お気軽にどうぞ!

資料請求 現地見学 電話でお問い合わせ
0120-150-580

頭金0万円・金利0.495%の場合

ボーナス時(年2回)お支払額

0

この物件の月々のお支払額

106,157

年収に対する返済比率

42

  • ※会員登録し、詳細情報を記入されますと、全ての物件で自動的に金額が表示され、大変便利です。
  • ※まだ会員登録をされていない方は、下記チェック欄をご記入ください。
  • ※上記計算は物件価格3,790万円+諸経費 8%込みの金額による結果となります。
  • ※返済金額はあくまでも目安です。

お客様の条件からシミュレーションするには?

会員登録
マイページから登録

金利

直接入力する

ボーナス払い(年2回)

返済年数

頭金

直接入力する

 万円(半角数字)

年収

 万円(半角数字)

約2,300m

スーパー

周辺環境:FUJI馬場店(FUJI馬場店まで2300m)

スーパー

約2,300m

約2,200m

スーパー

周辺環境:イトーヨーカ堂鶴見店(イトーヨーカ堂鶴見店まで2200m)

スーパー

約2,200m

約300m

その他環境写真

周辺環境:横浜市生麦地区センター(横浜市生麦地区センターまで300m)

その他環境写真

約300m

約200m

小学校

周辺環境:横浜市立生麦小学校(横浜市立生麦小学校まで200m)

小学校

約200m

約1,200m

中学校

周辺環境:横浜市立生麦中学校(横浜市立生麦中学校まで1200m)

中学校

約1,200m

約230m

公園

周辺環境:生麦公園(生麦公園まで230m)

公園

約230m

約360m

公園

周辺環境:生麦神明公園(生麦神明公園まで360m)

公園

約360m

約500m

病院

周辺環境:生麦病院(生麦病院まで500m)

病院

約500m

約260m

幼稚園・保育園

周辺環境:生麦保育園(生麦保育園まで260m)

幼稚園・保育園

約260m

価格 3,790万円
物件種別 新築一戸建て
間取り 4LDK
所在地 横浜市鶴見区 生麦3丁目
交通
  • 京浜急行本線「生麦」駅 徒歩 5 分
  • 京浜東北線「鶴見」駅 徒歩 26 分
土地面積 64.83㎡
建物面積 110.99㎡
学区 生麦小学校、生麦中学校
用途地域 第一種住居
建ぺい率 60%
容積率 160%
地目 宅地
駐車場 有り ビルトイン車庫 駐車場面積:9.94㎡
接道 北東4m
権利 旧法賃借
私道面積 無し
セットバック 無し
建物構造 木造
建物階数 3階
築年月 2025年08月
入居日 即時
都市計画 市街化区域
取引態様 仲介
物件番号 46786
設備 公営水道、公共下水、ビルトインガレージ、駐車場1台、緑豊かな住宅地、閑静な住宅地、平坦地、スーパーが近い(10分以内)、2沿線以上利用可、総合病院徒歩10分以内、保育施設・幼稚園5分以内、公園5分以内、コンビニ5分以内、システムキッチン、食器洗い機付き、浄水器、I型キッチン、浴室乾燥機、ウォシュレット、オートバス付き、トイレ2ヶ所、浴室に窓、バルコニー、ワイドバルコニー、3階建以上、LDK18畳以上、全室2面採光、フローリング、リビング階段、クローゼット、収納、床下収納、下駄箱、全居室収納、シャンプドレッサー付き、フラット35Sに対応、モニタ付きインターフォン、インターフォン、複層ガラス、24時間換気システム、建物10年保証
建築確認番号 第24KAK建確04133号
特記事項 不整形地 宅地造成工事規制区域 高度地区 準防火地域 日影制限 建築基準法第22条区域 津波浸水予測区域0.50≦浸水深(m)<1.20m 建物面積に車庫9.94平米含 旧法借地権(期間:新規20年、地代9000円/月) 不整形地:有/宅地造成工事規制区域:有/高度地区:有/準防火地域:有/日影制限:有/建築基準法第22条区域 津波浸水予測区域0.50≦浸水深(m)<1.20m 建物面積に車庫9.94平米含 旧法借地権(期間:新規20年、地代9000円/月)。 //地代:9000円/借地期間:20年0ヶ月。
備考 京急「生麦」駅から徒歩5分。通勤・通学に便利な立地。日差しが取り込みやすく、プライバシーに配慮した2階リビング。浴室換気暖房乾燥機・食洗器他設備充実。

こだわりポイント

  • 道路狭い(4メートル未満)
  • 借地権
  • 食器洗い洗浄乾燥機
  • 浴室換気乾燥暖房機
  • 2沿線利用であんしん通勤
  • 大人の二人暮らし
  • リビングイン階段
  • LDKは2階に
  • LDK18帖以上
  • 対面キッチン
  • 小学校10分以内
  • スーパー10分以内
  • コンビニ10分以内
  • 総合病院10分以内
  • 保育園10分以内
  • 都市ガス

お気軽にどうぞ!

資料請求 現地見学 電話でお問い合わせ
0120-150-580

このエリアでお探しの方へ

横浜市西区境之谷 中古一戸建 3680万円

相模鉄道線「西横浜」駅 徒歩 13 分

京浜急行本線「黄金町」駅 徒歩 17 分

横浜市西区 境之谷

3,680万円

3LDK

値下げしました!「大船」駅利用 新築一戸建て(A) ロフト完備

東海道本線「大船」駅 バス停「中町」まで 徒歩 1 分 バス利用 18分

根岸線「大船」駅 バス停「中町」まで 徒歩 1 分 バス利用 18分

鎌倉市 今泉3丁目

3,680万円

3SLDK

建物完成しました! 今週末内覧会開催中!「西谷」駅利用 新築一戸建て 対面キッチン

相模鉄道線「西谷」駅 徒歩 25 分

横浜線「鴨居」駅 バス停「金草沢」まで 徒歩 3 分 バス利用 17分

横浜市保土ケ谷区 新井町

3,498万円

3LDK

川崎市宮前区西野川3丁目 中古一戸建 3499万円

田園都市線「鷺沼」駅 バス停「和田八幡宮下」まで 徒歩 8 分 バス利用 22分

東急大井町線「溝の口」駅 バス停「和田八幡宮下」まで 徒歩 8 分 バス利用 26分

川崎市宮前区 西野川3丁目

3,499万円

4SLDK

値下げしました!今週末内覧会開催中!「港南中央」駅徒歩13分 中古一戸建て 対面キッチン

ブルーライン「港南中央」駅 徒歩 13 分

京浜急行本線「上大岡」駅 バス停「桜道坂上」まで 徒歩 4 分 バス利用 7分

横浜市港南区 港南6丁目

3,499万円

2LDK+2S

横浜市神奈川区菅田町 新築一戸建 3580万円

横浜線「鴨居」駅 バス停「西菅田団地」まで 徒歩 4 分 バス利用 8分

横浜線「中山」駅 バス停「西菅田団地」まで 徒歩 4 分 バス利用 31分

横浜市神奈川区 菅田町

3,580万円

3LDK

値下げしました! 「元町・中華街」駅利用 借地権付き新築一戸建て 全室2面採光

みなとみらい線「元町・中華街」駅 徒歩 16 分

東海道本線「横浜」駅 バス停「本郷町」まで 徒歩 5 分 バス利用 26分

横浜市中区 北方町1丁目

3,580万円

3LDK

横浜市青葉区元石川町 新築一戸建 3580万円

田園都市線「たまプラーザ」駅 バス停「覚永寺」まで 徒歩 7 分 バス利用 6分

ブルーライン「あざみ野」駅 バス停「覚永寺」まで 徒歩 7 分 バス利用 13分

横浜市青葉区 元石川町

3,580万円

2LDK

値下げしました! 「上永谷」駅利用 新築一戸建て 勾配天井

ブルーライン「上永谷」駅 徒歩 18 分

京浜急行本線「上大岡」駅 バス停「桜台」まで 徒歩 9 分 バス利用 8分

横浜市港南区 東永谷3丁目

3,580万円

2SLDK

今週末モデルハウス見学会開催中!「上永谷」駅徒歩15分 新築一戸建て(2) ロフト

ブルーライン「上永谷」駅 徒歩 15 分

京浜急行本線「上大岡」駅 バス停「桜台」まで 徒歩 11 分 バス利用 8分

横浜市港南区 東永谷3丁目

3,580万円

3LDK

建物完成しました! 今週末内覧会開催中! 京急「弘明寺」駅利用 新築一戸建て(2) エコジョーズ

京浜急行本線「弘明寺」駅 徒歩 16 分

ブルーライン「弘明寺」駅 徒歩 22 分

横浜市南区 中里4丁目

3,580万円

3SLDK

今週末モデルハウス見学会開催中!「瀬谷」駅利用 新築一戸建て(2) 対面キッチン・リビングイン階段

相模鉄道線「瀬谷」駅 徒歩 26 分

相模鉄道線「三ッ境」駅 バス停「南台B会場」まで 徒歩 5 分 バス利用 7分

横浜市瀬谷区 宮沢2丁目

3,580万円

3LDK

お気軽にどうぞ!

資料請求 現地見学 電話でお問い合わせ
0120-150-580
来店予約