物件検索
エリアから探す
川崎市
横浜市
東京西部エリア
駅・路線から探す
JR線
東急電鉄線
横浜市営地下鉄
小田急電鉄線
京浜急行電鉄線
相模鉄道線
横浜高速鉄道
京王電鉄線
その他
さらに条件を追加!
こだわりから探す
特集から探す
住宅ローンの相談
あんしんFP3つのメリット
01
専属のFPが
一貫してサポート
保険系FPではなく
住宅ローンに精通した
不動産系FPが対応します
02
安心安全な
資金計画
それぞれのご家庭の
ライフプランから安全な
返済計画を個別にご提案します
03
たくさんの銀行を
丁寧に比較
提携銀行だけにこだわりません!
損をさせない住宅ローンを
妥協なくご提案します
こんなお悩みありませんか?
どの銀行で申し込むのが
いいのか分からない…
ローン審査に落ちたことがある・
落ちる心配があるけど申し込めるの?
他のローンがあるけど
住宅ローンの審査に影響しないか心配
仕事や家事が忙しくて申し込みが
進まない・営業時間に来店できない
あんしんFPが解決します!
すまいのお金に関する8つのサービス
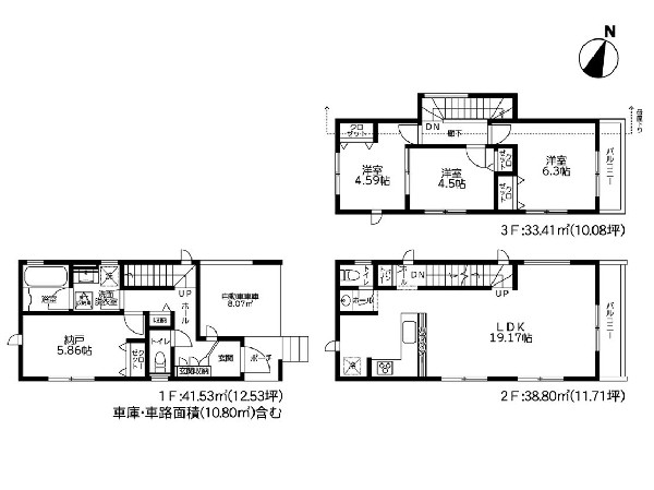
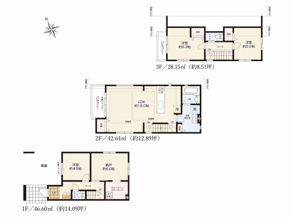
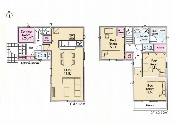
新着物件
おすすめ物件ランキング
ご購入の流れ
01
まずは無料FP相談
「いくらまでの物件なら安全に購入できるのか?」を把握しましょう!
02
希望伝達
エリアや広さ、利便性等、全ての希望条件を聞かせてください!
03
情報選別
仲介専業だからこそ、自社物件にこだわらないたくさんの物件情報があります。気になるものを選びましょう。
04
物件見学
選んだ物件情報の現地を実際に見学。納得いくまで何件でも見比べてください。
05
購入決定
契約の前に重要事項の説明があります。あらゆるリスクを徹底的に調査して報告いたします!
06
物件のお引き渡し
引き渡し後も、住まいのお金に関する不安は続きます。生涯無料でFPがご相談に応じます。
01
まずは現状ヒアリング
最初に現在の会計の状況と将来の計画をお聞かせ下さい
02
キャッシュフロー表作成
現在から老後までのキャッシュフローの推移をご確認いただきます
03
資金計画のご提案
将来に渡って安心して支払っていける「安全な物件価格」をご提案いたします
04
住宅ローンの選定
「12銀行比較パッケージ」を使い最も有利な銀行を探し出します
05
事前審査
絞った銀行に審査依頼をかけて、適用金利を確定させ、正確な返済計画表を完成させます
まずはお気軽にご相談ください!
会社概要
- 事業所名
- 株式会社あんしんマイホーム
- 所在地
- 〒213-0011 川崎市高津区久本三丁目13番10号
- アクセス
- 東急田園都市線「溝の口」駅東口から「南武線の線路沿い徒歩8分」
- 営業時間
- 午前9:00~午後10:00
- 専用駐車場
- 25台
- 電話番号
- 0120-150-580



