1. トップページ
  2. 横浜市鶴見区下野谷町4丁目 新築一戸建 5180万円

横浜市鶴見区下野谷町4丁目 新築一戸建 5180万円

価格
5,180万円
物件種別
新築一戸建て
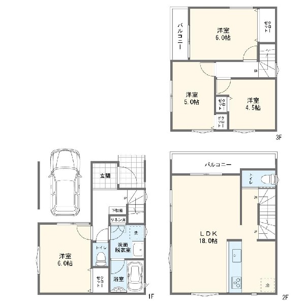
間取り
4LDK
所在地
横浜市鶴見区 下野谷町4丁目
交通
  • 鶴見線「鶴見小野」駅 徒歩 6 分
  • 京浜東北線「鶴見」駅 徒歩 19 分
土地面積
57.37㎡
建物面積
101.00㎡
  • 前回情報更新日 2025.12.16
  • 次回情報更新予定日 2025.12.30
資料請求 現地見学 電話でお問い合わせ
0120-150-580
外観:日当たりが良く開放感のある角地です。 2方向から光や風を取り込めるため、明るく快適な住まいが実現。
外観:日当たりが良く開放感のある角地です。 2方向から光や風を取り込めるため、明るく快適な住まいが実現。
間取り
間取り
区画図
区画図
外観:前面道路は大通りから一本入った通りのため、交通量も少なく静か。お子様がいても安心の住環境です。
外観:前面道路は大通りから一本入った通りのため、交通量も少なく静か。お子様がいても安心の住環境です。
周辺環境:汐入公園(芝生が心地良い「ふれあい広場」、花で囲まれた「日時計」、子どもに人気の「複合遊具」等の施設が充実。)
周辺環境:汐入公園(芝生が心地良い「ふれあい広場」、花で囲まれた「日時計」、子どもに人気の「複合遊具」等の施設が充実。)
周辺環境:ライフ鶴見下野谷町店(清潔感のある店内で買い物しやすく、鶴見周辺で一番の広さ・品揃えのスーパーです。約100台の駐車場有。)
周辺環境:ライフ鶴見下野谷町店(清潔感のある店内で買い物しやすく、鶴見周辺で一番の広さ・品揃えのスーパーです。約100台の駐車場有。)
周辺環境:ファミリーマート横浜鶴見小野店(時間を問わず立ち寄れる、便利なコンビニは徒歩3分の近さ。ホットスナックのファミチキが人気です。)
周辺環境:ファミリーマート横浜鶴見小野店(時間を問わず立ち寄れる、便利なコンビニは徒歩3分の近さ。ホットスナックのファミチキが人気です。)
周辺環境:みつる保育園(園舎はとても広々としていて、アクアリウムなどのスペースもあります。年間行事も充実しています。)
周辺環境:みつる保育園(園舎はとても広々としていて、アクアリウムなどのスペースもあります。年間行事も充実しています。)
周辺環境:汐入小学校(確かな学力・豊かな心・健やかにな体・公共心と社会参画意識・国際社会に寄与する開かれた心を身に付けます。)
周辺環境:汐入小学校(確かな学力・豊かな心・健やかにな体・公共心と社会参画意識・国際社会に寄与する開かれた心を身に付けます。)
周辺環境:うしおだ診療所(各種内科、各種外科、眼科、歯科など12の診療科がある。地域に根差した医療を目指し、訪問診療も行っている。)
周辺環境:うしおだ診療所(各種内科、各種外科、眼科、歯科など12の診療科がある。地域に根差した医療を目指し、訪問診療も行っている。)
周辺環境:FitCareDEPOT 鶴見本町通店(健康と美のみならず、生活全般をフォローしたドラッグストア。食料品、ベビー用品、ペット関連も取扱う。)
周辺環境:FitCareDEPOT 鶴見本町通店(健康と美のみならず、生活全般をフォローしたドラッグストア。食料品、ベビー用品、ペット関連も取扱う。)
周辺環境:横浜市潮田地区センター(様々なサークル活動、研修会、集会、読書、スポーツ、レクリエーション活動が出来る地域ふれあいの場。)
周辺環境:横浜市潮田地区センター(様々なサークル活動、研修会、集会、読書、スポーツ、レクリエーション活動が出来る地域ふれあいの場。)
周辺環境:モスバーガー鶴見本町通り店(美味しさと安全にこだわり、注文後に調理するハンバーガーショップ。照り焼きバーガーやライスバーガーが人気です。)
周辺環境:モスバーガー鶴見本町通り店(美味しさと安全にこだわり、注文後に調理するハンバーガーショップ。照り焼きバーガーやライスバーガーが人気です。)

この物件のココがオススメ!

開放的な角地 バルコニー2ヶ所 リビング広々17.2帖 パントリー付キッチン 乾太くん設置可能 カードキー

お気軽にどうぞ!

資料請求 現地見学 電話でお問い合わせ
0120-150-580

地図

申し訳ありません
こちらは会員限定機能です

会員登録で利用できる6つの便利機能

詳しく見る

お気軽にどうぞ!

資料請求 現地見学 電話でお問い合わせ
0120-150-580

頭金0万円・金利0.495%の場合

ボーナス時(年2回)お支払額

0

この物件の月々のお支払額

145,088

年収に対する返済比率

58

  • ※会員登録し、詳細情報を記入されますと、全ての物件で自動的に金額が表示され、大変便利です。
  • ※まだ会員登録をされていない方は、下記チェック欄をご記入ください。
  • ※上記計算は物件価格5,180万円+諸経費 8%込みの金額による結果となります。
  • ※返済金額はあくまでも目安です。

お客様の条件からシミュレーションするには?

会員登録
マイページから登録

金利

直接入力する

ボーナス払い(年2回)

返済年数

頭金

直接入力する

 万円(半角数字)

年収

 万円(半角数字)

約500m

公園

周辺環境:汐入公園(芝生が心地良い「ふれあい広場」、花で囲まれた「日時計」、子どもに人気の「複合遊具」等の施設が充実。)

公園

約500m

約600m

スーパー

周辺環境:ライフ鶴見下野谷町店(清潔感のある店内で買い物しやすく、鶴見周辺で一番の広さ・品揃えのスーパーです。約100台の駐車場有。)

スーパー

約600m

約300m

コンビニ

周辺環境:ファミリーマート横浜鶴見小野店(時間を問わず立ち寄れる、便利なコンビニは徒歩3分の近さ。ホットスナックのファミチキが人気です。)

コンビニ

約300m

約150m

幼稚園・保育園

周辺環境:みつる保育園(園舎はとても広々としていて、アクアリウムなどのスペースもあります。年間行事も充実しています。)

幼稚園・保育園

約150m

約450m

小学校

周辺環境:汐入小学校(確かな学力・豊かな心・健やかにな体・公共心と社会参画意識・国際社会に寄与する開かれた心を身に付けます。)

小学校

約450m

約650m

病院

周辺環境:うしおだ診療所(各種内科、各種外科、眼科、歯科など12の診療科がある。地域に根差した医療を目指し、訪問診療も行っている。)

病院

約650m

約350m

ドラッグストア

周辺環境:FitCareDEPOT 鶴見本町通店(健康と美のみならず、生活全般をフォローしたドラッグストア。食料品、ベビー用品、ペット関連も取扱う。)

ドラッグストア

約350m

約350m

その他環境写真

周辺環境:横浜市潮田地区センター(様々なサークル活動、研修会、集会、読書、スポーツ、レクリエーション活動が出来る地域ふれあいの場。)

その他環境写真

約350m

約400m

飲食店

周辺環境:モスバーガー鶴見本町通り店(美味しさと安全にこだわり、注文後に調理するハンバーガーショップ。照り焼きバーガーやライスバーガーが人気です。)

飲食店

約400m

価格 5,180万円
物件種別 新築一戸建て
間取り 4LDK
所在地 横浜市鶴見区 下野谷町4丁目
交通
  • 鶴見線「鶴見小野」駅 徒歩 6 分
  • 京浜東北線「鶴見」駅 徒歩 19 分
土地面積 57.37㎡
建物面積 101.00㎡
学区 汐入小学校、寛政中学校
用途地域 第二種住居
建ぺい率 60%
容積率 160%
地目 宅地
駐車場 有り ビルトイン車庫
接道 北西4m、北東4m
権利 所有権
私道面積 有 9.78㎡
セットバック 無し
建物構造 木造
建物階数 3階
築年月 2026年02月
入居日 2026年03月
都市計画 市街化区域
取引態様 仲介
物件番号 P1099
設備 公営水道、公共下水、省エネルギー対策、ビルトインガレージ、駐車場1台、閑静な住宅地、平坦地、角地、都市近郊、地盤調査済、市街地が近い、周辺交通量少なめ、スーパーが近い(10分以内)、駅まで平坦、始発駅、2沿線以上利用可、小学校徒歩10分以内、保育施設・幼稚園5分以内、公園5分以内、コンビニ5分以内、システムキッチン、カウンタキッチン、食器洗い機付き、浄水器、パントリー(食器・食品の収納庫)、ユニットバス、追い焚き、浴室乾燥機、ウォシュレット、オートバス付き、トイレ2ヶ所、浴室1坪以上、浴室に窓、暖房便座、浴室暖房、バルコニー、バルコニー2面、3階建以上、LDK15畳以上、採光3面、全室2面採光、南西向き、フローリング、リビング階段、スマートキー、クローゼット、収納、下駄箱、全居室収納、洗面室収納、シャンプドレッサー付き、フラット35Sに対応、年度内入居可、モニタ付きインターフォン、カードキー、複層ガラス、火災警報器(報知機)、通風良好、陽当り良好、24時間換気システム、建物10年保証
建築確認番号 第2025SBC-確00862Y号
特記事項 建物面積にビルトイン車庫面積12.1平米含む 航空法:有/宅地造成工事規制区域:有/高度地区:有/準防火地域:有/日影制限:有/緑化地域。 /
備考 開放的な角地 バルコニー2ヶ所 リビング広々17.2帖 パントリー付キッチン 乾太くん設置可能 カードキー

こだわりポイント

  • 道路狭い(4メートル未満)
  • 断熱に配慮された建物
  • 省エネに配慮された建物
  • 食器洗い洗浄乾燥機
  • 浴室換気乾燥暖房機
  • 運転ラクラク生活
  • 急行電車でスピード通勤
  • 駅まで平坦ラクラク通勤
  • 2沿線利用であんしん通勤
  • リビングイン階段
  • LDKは2階に
  • LDK15帖以上
  • 対面キッチン
  • 浴室1坪以上
  • パントリー
  • 小学校10分以内
  • スーパー10分以内
  • コンビニ10分以内
  • 小児科医院10分以内
  • 保育園10分以内
  • 公園10分以内
  • 都市ガス
  • フラット35利用可
  • 屋根付きカースペース
  • 角地限定
  • 整形地
  • 道路と段差無し
  • 3階建て以上建築可能地域

お気軽にどうぞ!

資料請求 現地見学 電話でお問い合わせ
0120-150-580

このエリアでお探しの方へ

今週末モデルハウス見学会開催中!「瀬谷」駅徒歩15分 新築一戸建て(2) 対面キッチン

相模鉄道線「瀬谷」駅 徒歩 15 分

相模鉄道線「大和」駅 バス停「市民活動ベテルギウス」まで 徒歩 16 分 バス利用 3分

横浜市瀬谷区 本郷1丁目

4,880万円

4LDK

今週末モデルハウス見学会開催中!「花月総持寺」駅利用 新築一戸建て(1) 閑静な住宅地

京浜急行本線「花月総持寺」駅 徒歩 16 分

京浜急行本線「生麦」駅 徒歩 18 分

横浜市鶴見区 東寺尾中台

4,880万円

4LDK

横浜市神奈川区神之木台 新築一戸建 4880万円 3号棟

横浜線「大口」駅 徒歩 11 分

京浜東北線「新子安」駅 徒歩 16 分

横浜市神奈川区 神之木台

4,880万円

3SLDK

今週末モデルハウス見学会開催中!「戸塚」駅利用 新築一戸建て(5)リビング階段

東海道本線「戸塚」駅 徒歩 16 分

根岸線「本郷台」駅 バス停「上倉田南」まで 徒歩 1 分 バス利用 14分

横浜市戸塚区 上倉田町

4,880万円

3LDK

今週末モデルハウス見学会開催中!京急「弘明寺」駅利用 新築一戸建て(1) 閑静な住宅地

京浜急行本線「弘明寺」駅 バス停「別所小学校入口」まで 徒歩 2 分 バス利用 5分

東海道本線「戸塚」駅 バス停「こども医療センター」まで 徒歩 10 分 バス利用 23分

横浜市南区 別所6丁目

4,880万円

3LDK

横浜市鶴見区東寺尾東台 新築一戸建 4880万円 A号棟

京浜急行本線「生麦」駅 徒歩 15 分

京浜急行本線「花月総持寺」駅 徒歩 17 分

横浜市鶴見区 東寺尾東台

4,880万円

2SLDK

川崎市多摩区南生田1丁目 新築一戸建 4880万円 4号棟

小田急線「読売ランド前」駅 徒歩 10 分

小田急線「生田」駅 徒歩 17 分

川崎市多摩区 南生田1丁目

4,880万円

4LDK

川崎市宮前区平6丁目 新築一戸建 4880万円

田園都市線「宮前平」駅 徒歩 19 分

南武線「武蔵溝ノ口」駅 バス停「向丘出張所」まで 徒歩 9 分 バス利用 15分

川崎市宮前区 平6丁目

4,880万円

4LDK

横浜市鶴見区北寺尾7丁目 新築一戸建 4880万円 A棟

横浜線「菊名」駅 徒歩 24 分

東急東横線「綱島」駅 バス停「獅子ケ谷」まで 徒歩 2 分 バス利用 20分

横浜市鶴見区 北寺尾7丁目

4,880万円

4LDK

横浜市鶴見区北寺尾7丁目 新築一戸建 4880万円 B棟

横浜線「菊名」駅 徒歩 24 分

東急東横線「綱島」駅 バス停「獅子ケ谷」まで 徒歩 2 分 バス利用 20分

横浜市鶴見区 北寺尾7丁目

4,880万円

4LDK

横浜市神奈川区菅田町 新築一戸建 4880万円 3号棟

横浜線「鴨居」駅 徒歩 17 分

横浜線「鴨居」駅 バス停「菅田町」まで 徒歩 1 分 バス利用 9分

横浜市神奈川区 菅田町

4,880万円

3LDK

川崎市川崎区四谷下町 新築一戸建 4880万円

京浜東北線「川崎」駅 バス停「塩浜営業所前」まで 徒歩 5 分 バス利用 15分

大師線「小島新田」駅 徒歩 22 分

川崎市川崎区 四谷下町

4,880万円

3LDK

お気軽にどうぞ!

資料請求 現地見学 電話でお問い合わせ
0120-150-580
来店予約