1. トップページ
  2. 建物完成しました! 今週末内覧会開催中!「長津田」駅利用 新築一戸建て(2)パントリー完備

建物完成しました! 今週末内覧会開催中!「長津田」駅利用 新築一戸建て(2)パントリー完備

価格
5,790万円
物件種別
新築一戸建て
間取り
3SLDK
所在地
横浜市青葉区 恩田町
交通
  • 田園都市線「長津田」駅 徒歩 13 分
  • こどもの国線「恩田」駅 徒歩 14 分
土地面積
105.32㎡
建物面積
91.70㎡
  • 前回情報更新日 2025.12.12
  • 次回情報更新予定日 2025.12.26
資料請求 現地見学 電話でお問い合わせ
0120-150-580
外観:◇外観◇  深く豊かな緑と爽快な青い空を感じるまさに横浜に暮らす心地よさを存分に堪能いただける邸宅です。グレードの高い設備仕様が標準装備のデザイン住宅で快適で便利な生活をお送り頂けます。
外観:◇外観◇ 深く豊かな緑と爽快な青い空を感じるまさに横浜に暮らす心地よさを存分に堪能いただける邸宅です。グレードの高い設備仕様が標準装備のデザイン住宅で快適で便利な生活をお送り頂けます。
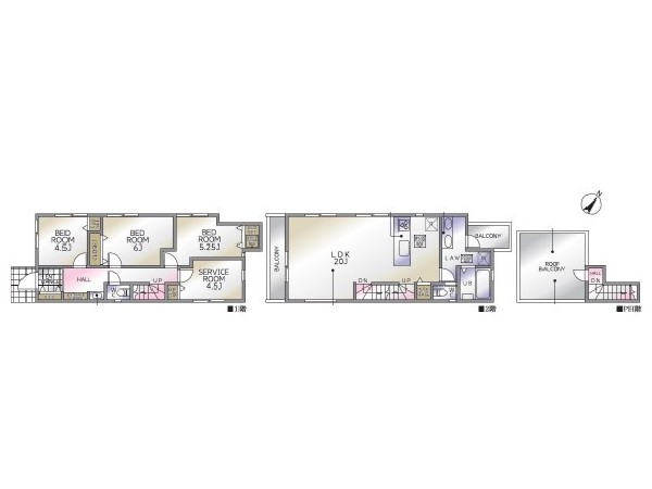
間取り:2号棟間取図
間取り:2号棟間取図
区画図
区画図
◇リビング・ダイニング◇  家族だんらんのリビング。家具の配置がしやすい広さが確保されております。(本画像はCGで作成しており、実際に現地に家具はおかれておりません。また価格に家具は含まれておりません)
◇リビング・ダイニング◇ 家族だんらんのリビング。家具の配置がしやすい広さが確保されております。(本画像はCGで作成しており、実際に現地に家具はおかれておりません。また価格に家具は含まれておりません)
外観:◇外観◇  開放感のある現地で、前面道路よりも少し高くなっておりますので、プライベート感も保たれます!高くなっている分、日当りや風通しも良く快適な生活が待っています!
外観:◇外観◇ 開放感のある現地で、前面道路よりも少し高くなっておりますので、プライベート感も保たれます!高くなっている分、日当りや風通しも良く快適な生活が待っています!
◇キッチン◇  広々キッチンは収納も大容量。お鍋やフライパン、油や調味料など沢山収納できるスペースを確保しています。キッチンがスッキリすると食事の支度や片付けがはかどります。
◇キッチン◇ 広々キッチンは収納も大容量。お鍋やフライパン、油や調味料など沢山収納できるスペースを確保しています。キッチンがスッキリすると食事の支度や片付けがはかどります。
外観:◇庭スペース◇  年中大活躍のプライベート空間になるお庭はご家族の団らんの場として最適なスペース。ホッと一息、そんなときにお庭があると心が安らぎますね。
外観:◇庭スペース◇ 年中大活躍のプライベート空間になるお庭はご家族の団らんの場として最適なスペース。ホッと一息、そんなときにお庭があると心が安らぎますね。
◇キッチン◇  対面式のカウンターキッチンは、出来上がったお料理をカウンターに並べてお子様が運ぶなど、お手伝いの時間も増えそうですね!家族と会話をしながら料理を楽しめ一体感を感じられるキッチン。
◇キッチン◇ 対面式のカウンターキッチンは、出来上がったお料理をカウンターに並べてお子様が運ぶなど、お手伝いの時間も増えそうですね!家族と会話をしながら料理を楽しめ一体感を感じられるキッチン。
外観:◇玄関◇  シューズクロークは可動棚タイプになっていますので、ブーツや長靴もたっぷり収納いただけます。いつも気持ちよくご家族をむかえられるよう、玄関収納をフル活用してスッキリとした玄関を保ってください。
外観:◇玄関◇ シューズクロークは可動棚タイプになっていますので、ブーツや長靴もたっぷり収納いただけます。いつも気持ちよくご家族をむかえられるよう、玄関収納をフル活用してスッキリとした玄関を保ってください。
◇リビング・ダイニング◇  家族だんらんのリビング。家具の配置がしやすい広さを確保しつつ、窓が多い設計は沢山の光が取り込める拘りの間取りです。明るいリビングで寛ぐ新しい生活をスタートさせてみませんか。
◇リビング・ダイニング◇ 家族だんらんのリビング。家具の配置がしやすい広さを確保しつつ、窓が多い設計は沢山の光が取り込める拘りの間取りです。明るいリビングで寛ぐ新しい生活をスタートさせてみませんか。
◇リビング・ダイニング◇  各棟17帖超の広々LDK。導線もしっかりと考えられていて、ダイニングテーブルやソファー、ローテーブル等の家具もしっかりと配置できます。ゆったりとした広さの空間でご家族だんらんの
◇リビング・ダイニング◇ 各棟17帖超の広々LDK。導線もしっかりと考えられていて、ダイニングテーブルやソファー、ローテーブル等の家具もしっかりと配置できます。ゆったりとした広さの空間でご家族だんらんの
◇リビング・ダイニング◇  LDKのメインとなる大きな窓。開口部からは暖かい日差しが長い時間射し込みます。天気の良い日は是非窓を開けて風通しの良さもご体感下さい。明るいLDKがご家族団欒の時を包みます。
◇リビング・ダイニング◇ LDKのメインとなる大きな窓。開口部からは暖かい日差しが長い時間射し込みます。天気の良い日は是非窓を開けて風通しの良さもご体感下さい。明るいLDKがご家族団欒の時を包みます。
◇居室◇  光が取り込みやすい2面採光の居室。日当たり良好です。クローゼットを完備し、収納スペースも十分。初めてのお子様にとっての「自分の部屋」。学習デスクやベッドの配置もラクラクです。
◇居室◇ 光が取り込みやすい2面採光の居室。日当たり良好です。クローゼットを完備し、収納スペースも十分。初めてのお子様にとっての「自分の部屋」。学習デスクやベッドの配置もラクラクです。
◇居室◇  居室には収納クローゼットを完備!普段使いのお洋服や小物はもちろん、季節物のお洋服などもしっかりと整理整頓おしまい頂けます。居室空間をより広く隅々までお使いいただけますね。
◇居室◇ 居室には収納クローゼットを完備!普段使いのお洋服や小物はもちろん、季節物のお洋服などもしっかりと整理整頓おしまい頂けます。居室空間をより広く隅々までお使いいただけますね。
◇居室◇  日差しを長時間受ける事が出来る暖かいお部屋です。もちろんペアガラスなので、遮音性にも優れ結露も発生しにくい構造。サッシ周りのカビが発生しにくくなりますね。
◇居室◇ 日差しを長時間受ける事が出来る暖かいお部屋です。もちろんペアガラスなので、遮音性にも優れ結露も発生しにくい構造。サッシ周りのカビが発生しにくくなりますね。
◇居室◇  収納力が豊富な大型クローゼット。普段着やスーツはもちろん、コート類などもしっかり掛けられます。奥行きもあるので、収納ボックスをそのままクローゼットの中へ。部屋にものが出ずスッキリしますね。
◇居室◇ 収納力が豊富な大型クローゼット。普段着やスーツはもちろん、コート類などもしっかり掛けられます。奥行きもあるので、収納ボックスをそのままクローゼットの中へ。部屋にものが出ずスッキリしますね。
◇キッチン◇  システムキッチンとコーディネイトされたカップボードもあり、収納力も充分です。また側には可動棚付きのパントリーを備え、食品はもちろん、リビングの収納にも役立ちます。
◇キッチン◇ システムキッチンとコーディネイトされたカップボードもあり、収納力も充分です。また側には可動棚付きのパントリーを備え、食品はもちろん、リビングの収納にも役立ちます。
◇リビング・ダイニング◇  家族と過ごす時間を大切にする方にピッタリのゆとりの住空間です。お子様が元気に走り回っても安心して見守れます。家族の笑い声が今にも目に浮かびそうですね。
◇リビング・ダイニング◇ 家族と過ごす時間を大切にする方にピッタリのゆとりの住空間です。お子様が元気に走り回っても安心して見守れます。家族の笑い声が今にも目に浮かびそうですね。
◇浴室◇  ゆったりと寛げる広々バス。殆どの方は足を伸ばして入浴することが可能で一日の疲れを癒す貴重なバスタイムです。お子様とご一緒にリビングとは違った家族団欒のひと時をお楽しみ下さい。
◇浴室◇ ゆったりと寛げる広々バス。殆どの方は足を伸ばして入浴することが可能で一日の疲れを癒す貴重なバスタイムです。お子様とご一緒にリビングとは違った家族団欒のひと時をお楽しみ下さい。
周辺環境:あかね台熊の谷公園(あかね台熊の谷公園まで400m)
周辺環境:あかね台熊の谷公園(あかね台熊の谷公園まで400m)
周辺環境:あかね台光の子保育園(あかね台光の子保育園まで700m)
周辺環境:あかね台光の子保育園(あかね台光の子保育園まで700m)
周辺環境:あかね台堀の内公園(あかね台堀の内公園まで230m)
周辺環境:あかね台堀の内公園(あかね台堀の内公園まで230m)
周辺環境:フードワン田奈店(フードワン田奈店まで1400m)
周辺環境:フードワン田奈店(フードワン田奈店まで1400m)
周辺環境:横浜市立あかね台中学校(横浜市立あかね台中学校まで500m)
周辺環境:横浜市立あかね台中学校(横浜市立あかね台中学校まで500m)
周辺環境:横浜市立田奈小学校(横浜市立田奈小学校まで1300m)
周辺環境:横浜市立田奈小学校(横浜市立田奈小学校まで1300m)
周辺環境:成瀬台幼稚園(成瀬台幼稚園まで1800m)
周辺環境:成瀬台幼稚園(成瀬台幼稚園まで1800m)
周辺環境:田奈クリニック(田奈クリニックまで1900m)
周辺環境:田奈クリニック(田奈クリニックまで1900m)
周辺環境:田奈東急ストア(田奈東急ストアまで1800m)
周辺環境:田奈東急ストア(田奈東急ストアまで1800m)

この物件のココがオススメ!

複数路線が乗り入れる「長津田」駅から徒歩13分。全室2面採光で通風良好。収納に心強いパントリー完備。食洗機・ペアガラス他、設備充実。

お気軽にどうぞ!

資料請求 現地見学 電話でお問い合わせ
0120-150-580

地図

申し訳ありません
こちらは会員限定機能です

会員登録で利用できる6つの便利機能

詳しく見る

お気軽にどうぞ!

資料請求 現地見学 電話でお問い合わせ
0120-150-580

頭金0万円・金利0.495%の場合

ボーナス時(年2回)お支払額

0

この物件の月々のお支払額

162,180

年収に対する返済比率

65

  • ※会員登録し、詳細情報を記入されますと、全ての物件で自動的に金額が表示され、大変便利です。
  • ※まだ会員登録をされていない方は、下記チェック欄をご記入ください。
  • ※上記計算は物件価格5,790万円+諸経費 8%込みの金額による結果となります。
  • ※返済金額はあくまでも目安です。

お客様の条件からシミュレーションするには?

会員登録
マイページから登録

金利

直接入力する

ボーナス払い(年2回)

返済年数

頭金

直接入力する

 万円(半角数字)

年収

 万円(半角数字)

約400m

公園

周辺環境:あかね台熊の谷公園(あかね台熊の谷公園まで400m)

公園

約400m

約700m

幼稚園・保育園

周辺環境:あかね台光の子保育園(あかね台光の子保育園まで700m)

幼稚園・保育園

約700m

約230m

公園

周辺環境:あかね台堀の内公園(あかね台堀の内公園まで230m)

公園

約230m

約1,400m

スーパー

周辺環境:フードワン田奈店(フードワン田奈店まで1400m)

スーパー

約1,400m

約500m

中学校

周辺環境:横浜市立あかね台中学校(横浜市立あかね台中学校まで500m)

中学校

約500m

約1,300m

小学校

周辺環境:横浜市立田奈小学校(横浜市立田奈小学校まで1300m)

小学校

約1,300m

約1,800m

幼稚園・保育園

周辺環境:成瀬台幼稚園(成瀬台幼稚園まで1800m)

幼稚園・保育園

約1,800m

約1,900m

病院

周辺環境:田奈クリニック(田奈クリニックまで1900m)

病院

約1,900m

約1,800m

スーパー

周辺環境:田奈東急ストア(田奈東急ストアまで1800m)

スーパー

約1,800m

価格 5,790万円
物件種別 新築一戸建て
間取り 3SLDK
所在地 横浜市青葉区 恩田町
交通
  • 田園都市線「長津田」駅 徒歩 13 分
  • こどもの国線「恩田」駅 徒歩 14 分
土地面積 105.32㎡
建物面積 91.70㎡
学区 田奈小学校、あかね台中学校
用途地域 無指
建ぺい率 60%
容積率 200%
地目 宅地
駐車場 有り カースペース
接道 南18m
権利 所有権
私道面積 無し
セットバック 無し
建物構造 木造
建物階数 2階
築年月 2025年11月
入居日 2025年12月
都市計画 市街化調整区域
取引態様 仲介
物件番号 47643-2
設備 公営水道、公共下水、駐車場1台、南側道路面す、前道6m以上、始発駅、2沿線以上利用可、中学校徒歩10分以内、公園5分以内、コンビニ5分以内、システムキッチン、ガス3口、食器洗い機付き、I型キッチン、パントリー(食器・食品の収納庫)、ユニットバス、追い焚き、ウォシュレット、トイレ2ヶ所、浴室に窓、暖房便座、バルコニー、南面バルコニー、2階建、LDK15畳以上、省エネ給湯器、全室2面採光、全室フローリング、リビング階段、クローゼット、収納、床下収納、全居室収納、シャンプドレッサー付き、モニタ付きインターフォン、複層ガラス、全居室複層ガラスか複層サッシ、24時間換気システム、建物10年保証
建築確認番号 第2025SBC-確00890H号
特記事項 崖上につき建築制限 宅地造成工事規制区域 日影制限 一部都市計画道路 敷地内段差 建築基準法第22条区域 建物建築・再建築の際、深基礎、基礎杭、擁壁の補修・再構築、外壁後退等の対策が必要となる場合有 傾斜地含  崖上につき建築制限:有/宅地造成工事規制区域:有/日影制限:有/一部都市計画道路:有/敷地内段差:有/建築基準法第22条区域 建物建築・再建築の際、深基礎、基礎杭、擁壁の補修・再構築、外壁後退等の対策が必要となる場合有。傾斜地含 。 /
備考 複数路線が乗り入れる「長津田」駅から徒歩13分。全室2面採光で通風良好。収納に心強いパントリー完備。食洗機・ペアガラス他、設備充実。

こだわりポイント

  • 計画道路予定地内
  • 断熱に配慮された建物
  • 省エネに配慮された建物
  • 食器洗い洗浄乾燥機
  • 急行電車でスピード通勤
  • 始発で座ってゆったり通勤
  • LDKは1階に
  • 2階建て住宅限定
  • リビングイン階段
  • LDK15帖以上
  • 対面キッチン
  • パントリー
  • コンビニ10分以内
  • 保育園10分以内
  • 公園10分以内
  • 都市ガス
  • フラット35利用可
  • カースペース2台
  • 道路広々(5m以上)
  • 南道路限定

お気軽にどうぞ!

資料請求 現地見学 電話でお問い合わせ
0120-150-580

このエリアでお探しの方へ

今週末モデルハウス見学会開催中!「長津田」駅徒歩15分 新築一戸建て(6) 閑静な住宅地

田園都市線「長津田」駅 徒歩 15 分

横浜線「十日市場」駅 徒歩 15 分

横浜市緑区 長津田みなみ台7丁目

5,580万円

4LDK

横浜市緑区長津田みなみ台7丁目 新築一戸建 5580万円 6号棟

田園都市線「長津田」駅 徒歩 15 分

横浜線「十日市場」駅 徒歩 15 分

横浜市緑区 長津田みなみ台7丁目

5,580万円

4LDK

横浜市緑区長津田町 新築一戸建 5680万円 1号棟

田園都市線「長津田」駅 徒歩 14 分

田園都市線「つくし野」駅 徒歩 13 分

横浜市緑区 長津田町

5,680万円

3SLDK

建物完成しました! 今週末内覧会開催中!「長津田」駅利用 新築一戸建て(3)WIC・SIC・パントリ

田園都市線「長津田」駅 徒歩 13 分

こどもの国線「恩田」駅 徒歩 14 分

横浜市青葉区 恩田町

5,690万円

2LDK+2S

今週末モデルハウス見学会開催中!「長津田」駅徒歩15分 新築一戸建て(3) 角地

田園都市線「長津田」駅 徒歩 15 分

横浜線「十日市場」駅 徒歩 15 分

横浜市緑区 長津田みなみ台7丁目

5,780万円

4LDK

横浜市緑区長津田みなみ台7丁目 新築一戸建 5780万円 3号棟

田園都市線「長津田」駅 徒歩 15 分

横浜線「十日市場」駅 徒歩 15 分

横浜市緑区 長津田みなみ台7丁目

5,780万円

4LDK

建物完成しました! 今週末内覧会開催中!「長津田」駅利用 新築一戸建て(4)WIC・SIC完備

田園都市線「長津田」駅 徒歩 13 分

こどもの国線「恩田」駅 徒歩 14 分

横浜市青葉区 恩田町

5,790万円

4LDK

横浜市青葉区鴨志田町 新築一戸建 5490万円 A号棟

田園都市線「青葉台」駅 バス停「団地中央」まで 徒歩 5 分 バス利用 12分

こどもの国線「こどもの国」駅 バス停「団地中央」まで 徒歩 6 分 バス利用 13分

横浜市青葉区 鴨志田町

5,490万円

4LDK

横浜市青葉区もみの木台 新築一戸建 5490万円 A棟

田園都市線「あざみ野」駅 バス停「もみの木台」まで 徒歩 3 分 バス利用 7分

小田急線「新百合ヶ丘」駅 バス停「もみの木台」まで 徒歩 3 分 バス利用 19分

横浜市青葉区 もみの木台

5,490万円

2SLDK

横浜市青葉区鴨志田町 新築一戸建 5580万円 1号棟

田園都市線「青葉台」駅 バス停「中谷都」まで 徒歩 4 分 バス利用 7分

こどもの国線「こどもの国」駅 バス停「三菱ケミカル」まで 徒歩 2 分 バス利用 6分

横浜市青葉区 鴨志田町

5,580万円

3LDK

横浜市青葉区鴨志田町 新築一戸建 5580万円 2号棟

田園都市線「青葉台」駅 バス停「中谷都」まで 徒歩 4 分 バス利用 7分

こどもの国線「こどもの国」駅 バス停「三菱ケミカル」まで 徒歩 2 分 バス利用 6分

横浜市青葉区 鴨志田町

5,580万円

3LDK

横浜市青葉区奈良町 新築一戸建 5880万円 B号棟

こどもの国線「こどもの国」駅 徒歩 8 分

横浜線「十日市場」駅 バス停「奈良町」まで 徒歩 5 分 バス利用 19分

横浜市青葉区 奈良町

5,880万円

4LDK

お気軽にどうぞ!

資料請求 現地見学 電話でお問い合わせ
0120-150-580
来店予約