値下げしました! 「保土ヶ谷」駅徒歩10分 新築一戸建て(B) LDK19.5帖
この物件のココがオススメ!
JR「保土ヶ谷」駅から徒歩10分。通勤・通学に便利な立地。全室2面採光で明るく、通風良好なお住まい。カースペース2台駐車可能。
地図
頭金0万円・金利0.495%の場合
ボーナス時(年2回)お支払額
0円
この物件の月々のお支払額
177,872円
年収に対する返済比率
71%
- ※会員登録し、詳細情報を記入されますと、全ての物件で自動的に金額が表示され、大変便利です。
- ※まだ会員登録をされていない方は、下記チェック欄をご記入ください。
- ※上記計算は物件価格6,350万円+諸経費 8%込みの金額による結果となります。
- ※返済金額はあくまでも目安です。
スーパー
約1,400m
スーパー
約1,200m
公園
約900m
幼稚園・保育園
約1,200m
病院
約450m
中学校
約350m
小学校
約400m
幼稚園・保育園
約1,600m
公園
約600m
| 価格 | 6,350万円 |
|---|---|
| 物件種別 | 新築一戸建て |
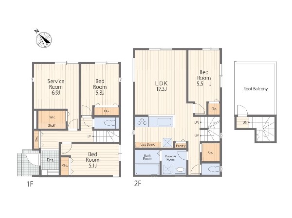
| 間取り | 4LDK |
| 所在地 | 横浜市西区 元久保町 |
| 交通 |
|
| 土地面積 | 123.42㎡ |
| 建物面積 | 104.34㎡ |
| 学区 | 富士見台小学校、岩井原中学校 |
| 用途地域 | 第二種中高層住居専用 |
| 建ぺい率 | 60% |
| 容積率 | 150% |
| 地目 | 宅地 |
| 駐車場 | 有り カースペース |
| 接道 | 南4m |
| 権利 | 所有権 |
| 私道面積 | 有 0.44㎡ |
| セットバック | 無し |
| 建物構造 | 木造 |
| 建物階数 | 2階 |
| 築年月 | 2025年11月 |
| 入居日 | 即時 |
| 都市計画 | 市街化区域 |
| 取引態様 | 仲介 |
| 物件番号 | 46501-B |
| 設備 | 公営水道、公共下水、外壁サイディング、駐車場2台以上、緑豊かな住宅地、閑静な住宅地、南側道路面す、スーパーが近い(10分以内)、2沿線以上利用可、総合病院徒歩10分以内、小学校徒歩10分以内、中学校徒歩10分以内、公園5分以内、システムキッチン、食器洗い機付き、浄水器、I型キッチン、アイランドキッチン、ユニットバス、浴室乾燥機、ウォシュレット、トイレ2ヶ所、浴室1坪以上、浴室に窓、バルコニー、南面バルコニー、2階建、LDK20畳以上、省エネ給湯器、採光2面、南向き、全室2面採光、フローリング、全室フローリング、クローゼット、収納、下駄箱、屋根裏収納、全居室収納、シャンプドレッサー付き、フラット35Sに対応、モニタ付きインターフォン、複層ガラス、通風良好、陽当り良好、24時間換気システム、建物10年保証 |
| 建築確認番号 | 第24KAK建確02341号 |
| 特記事項 | 横浜市建築基準条例第3条による制限有 不整形地 宅地造成工事規制区域 高度地区 準防火地域 日影制限 不燃化推進地域 建築基準法第22条区域 ※建物建築・再建築の際、防護壁の設置、高基礎、外壁後退等の対策が必要となる場合があります。 一部協定通路 崖下につき建築制限:有/不整形地:有/宅地造成工事規制区域:有/高度地区:有/準防火地域:有/日影制限:有/一部協定通路:有/不燃化推進地域 建築基準法第22条区域 ※建物建築・再建築の際、防護壁の設置、高基礎、外壁後退等の対策が必要となる場合があります。 / |
| 備考 | JR「保土ヶ谷」駅から徒歩10分。通勤・通学に便利な立地。全室2面採光で明るく、通風良好なお住まい。カースペース2台駐車可能。 |
こだわりポイント
- 道路狭い(4メートル未満)
- 断熱に配慮された建物
- 食器洗い洗浄乾燥機
- 浴室換気乾燥暖房機
- 大人の二人暮らし
- LDKは1階に
- 2階建て住宅限定
- LDK18帖以上
- 対面キッチン
- 小学校10分以内
- 総合病院10分以内
- 公園10分以内
- 都市ガス
- フラット35利用可
- カースペース2台